EXHIBIT 10.4
THIS LEASE, Made and entered into by and between Belpre IV, LLC, a West Virginia limited liability company, (hereinafter "Landlord"), and Marietta Memorial Hospital, an Ohio non profit corporation, (hereinafter "Tenant").
WITNESSETH: That for and in consideration of the mutual terms, covenants, provisions and conditions herein set forth, Landlord does hereby lease to Tenant, and Tenant does hereby hire and rent from Landlord those certain premises, hereinafter referred to as the “Demised Premises,” as follows:
DEMISED PREMISES
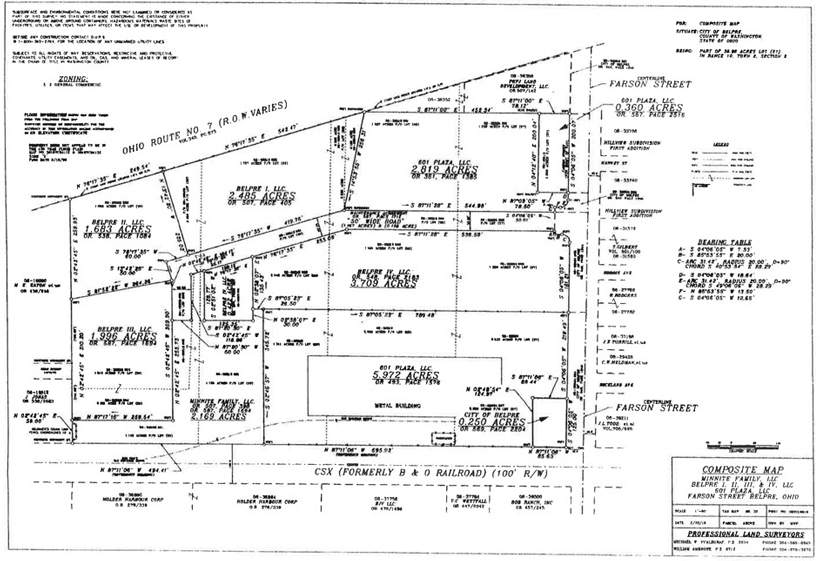
Section 1: The Demised Premises shall consist of and are described as the gross building area of 55,300 square feet, pursuant to the project design of Trinity Health Group of the building (“Building”), to be located in the Health Bridge Medical Park, with the mailing address of 799 Farson Street, Belpre, Ohio 45714, together with the real estate upon which the Building shall be located, including parking lots and sidewalks thereon, all as shown on the plats and floor plans included in the plans and specifications hereinafter described to be attached hereto and made a part hereof as Exhibit A, being a part of the same real estate to be conveyed to Landlord by Minnite Family, LLC, a West Virginia limited liability company.
USE OF PREMISES
Section 2: The Demised Premises shall be used and occupied by Tennant during the term hereof, including any and all renewal terms, subject to the terms, conditions and limitations herein contained, as a free standing out patient health center, and for such uses reasonably related and incidental thereto, including, but not limited to, emergency room facilities, an endoscopy unit and physicians’ offices.
INITIAL TERM
Section 3: The initial term of this Lease shall be for a period of Fifteen (15) years, commencing on July 31, 2014, and ending on July 30, 2029, subject, however, to the rentals, terms and conditions hereinafter set forth.
BASE RENT
Section 4: Commencing July 31, 2014, Tenant shall pay Base Rent in an annual amount and rate of $39.38 per square foot for the portion of the gross building area of the Building available for occupancy by Tenant for the emergency room facilities (“Emergency Room Phase”) and endoscopy facilities (“Endoscopy Phase”), as designated on Exhibit A or as amended by change order in accordance herewith, from and after the date of such availability of each such phase for each year of the first five (5) years of the initial term of this Lease, or each year of the remainder of the first five (5) years of the initial term of this Lease from and after such date of availability, as the case may be. Also commencing July 31, 2014, Tenant shall further pay Base Rent in an amount and rate of $10,000.00 per month for the first two (2) years of the initial term of this Lease, until and unless adjusted as herein provided, for the remaining portions of the area of the Building shell space designated for Tenant’s use for physicians’ offices on Exhibit A or as amended by change order in accordance herewith. Provided, that, as physicians’ offices are constructed by Landlord upon Tenant’s written order, provided to Landlord during said two (2) year period, for construction of the same, Tenant shall pay Base Rent in an annual amount and rate of $21.50 per square foot for such completed office space (“Tenant Physicians’ Offices”) from and after the date it is made available by Landlord to Tenant for occupancy for such purposes for each year of the remainder of the first five (5) years of the initial term of this Lease, and if such Tenant Physicians’ Offices are made available during said two (2) year period, then from and after each such date of availability, the initial $10,000.00 monthly Base Rent for the entirety of the shell space designated for Tenant’s use for physicians’ offices shall be reduced ratably for the remainder of said two (2) year period from and after each such date of availability based upon the percentage of total space completed for Tenant Physicians’ Offices as of each such date. Provided, that commencing July 31, 2016 Tenant’s obligation to pay rent for any of the space designated for Tenant’s use for physicians’ offices which has not been occupied or made available for Tenant Physicians’ Offices, or for which a written order for construction of the same has not been received by Landlord, as of such date, shall cease and Landlord may rent the same for its benefit and for such purposes and upon such terms as Landlord may determine, subject only to such restrictions as may apply by the terms of this Lease or otherwise. For and during each of the remaining two (2) five (5) year periods of the initial term of this Lease all Base Rent for the Emergency Room Phase, Endoscopy Phase and Tenant Physicians’ Offices may be modified by Landlord, not to exceed an increase for each such successive five (5) year period by ten (10%) per cent of the amount and rate of such Base Rent in effect upon the expiration of the immediately preceding five (5) year period. Provided, that in the event the cost of construction pursuant to change orders required by Section 5 hereof, exceeds the total project cost reflected on Exhibit B hereto, all of the Base Rent due and to become due hereunder shall be increased for the initial term of this Lease, commencing on the respective commencement dates for payment of rent herein provided, by an amount equal to ten (10%) per cent of the increase in such cost of construction in excess of said total project cost.
Such Base Rent shall be paid in equal monthly installments and shall be due and payable in advance on the first day of each calendar month, being the first day of each lease month hereunder, during the term hereof. The first month’s rent is due and payable to Landlord July 31, 2014, and all required rental payments shall be made to Belpre IV, LLC, 1000 Grand Central Mall, Vienna, West Virginia 26105, and shall continue to be made at this address until Landlord advises of any change of address. Provided, that in the event of the availability of any portions of the Building for occupancy occurring during a lease month based upon the commencement date of this Lease, the Base Rent for the remaining portion of such month shall be prorated and due on such date of availability, and subsequent monthly installments of said Base Rent shall be due and payable in advance on the first day of each lease month during the remainder of such term.
| 2 |
a. Late Fees: If the rental payment is not received within ten (10) days from the date due, a late fee equal to eight percent (8%) of the total outstanding rent and late fees shall be charged to Tenant monthly. Failure by the Landlord to enforce this provision in any one month shall not prevent Landlord from subsequently enforcing the same.
b. Returned Check Fees: In the event payment is made by check and such check is returned unpaid by the bank to Landlord, a returned check fee will be charged to Tenant in the amount of Thirty-Five and No/100ths ($35.00) Dollars.
CONSTRUCTION AND TENANT BUILDOUT REQUIREMENTS
Section 5: Landlord shall construct on the Demised Premises the Building, parking lots and sidewalks for the use and occupancy of Tenant, such Building, parking lots and sidewalks to be constructed and provided to Tenant as a complete turnkey project on the dates herein provided in accordance with the project design of the said Trinity Health Group, in accordance with the project budget marked as Exhibit B and attached to and made a part of this Lease and in accordance with Exhibit A. Tenant shall provide and construct at its cost the special buildout items described on Exhibit C attached to and made a part of this Lease.
The final plans and specifications for such construction shall provide for and permit construction of the Building, parking lots and sidewalks in strict accordance with the total project budget reflected on Exhibit B, are to be provided to Landlord on or before June 30, 2013, and are to be approved by both Tenant and Landlord not more than thirty (30) days after receipt by both parties. Provided, that Landlord may make minor changes in material and construction detail described in such plans and specifications, provided the quality, design and appearance of the Building and building materials are not materially altered. Construction shall be commenced as soon as practicable after the execution of this Lease, and Landlord and Tenant shall cause construction to be completed to permit occupancy by Tenant for the purposes of this Lease, except as herein provided or unless delayed by causes beyond the control of Landlord or Tenant, as follows: i) for the Emergency Room Phase and Building shell as designated on Exhibit A on or before July 31, 2014; ii) for Endoscopy Phase as designated on Exhibit A on or before August 31, 2014; and iii) for individual physician’s offices within the areas of the Building shell space so designated on Exhibit A within a commercially reasonable time after receipt by Landlord of Tenant’s written order for construction thereof. Any construction or alteration or modification resulting in any change in the total project cost reflected on Exhibit B shall be approved by both Landlord and Tenant and shall be documented by written change order signed by both such parties, and any increase in costs of construction over and above those numerated in the total project cost reflected on Exhibit B shall result in the increase in Base Rent as provided in Section 4 above.
All construction work performed by Landlord shall be guaranteed by Landlord to Tenant for a period of one (1) year from and after the completion of such construction. However, the liability of Landlord therefor shall be limited to the repair and replacement of any such work found and determined to be defective during such one (1) year period.
| 3 |
EXTERIOR MAINTENANCE
Section 6: Except as expressly otherwise provided herein, Tenant shall maintain and keep the exterior of the Demised Premises in good order and repair including, but not limited to, the roof, walls, gutters, downspouts, canopies, exterior doors, supply lines for gas, electric, and water, drainage and sewer lines, entrances and exits, sidewalks and parking areas, including cleaning and maintaining sidewalks and parking areas, including, but not limited to snow and ice removal, landscaping, and providing trash removal. Landlord shall make all structural repairs to the Building and all interior repairs, by reason of any exterior or structural defect, including but not limited to, leaks, broken pipes and falling plaster.
COMMON AREAS
Section 7: In connection with this Lease of the Demised Premises, Landlord further grants to Tenant, its employees, agents, customers and business invitees, the non-exclusive right to use all access ways to and from the Demised Premises and public roadways. Tenant shall reimburse Landlord its prorated share of repair and maintenance costs for such access ways based upon the percentage which the gross building area of the Building constitutes of the gross building area of all buildings on premises in the Development Site, as hereinafter defined, using the access ways, in monthly installments to be paid with Tenant’s payments of Base Rent, as budgeted, assessed and billed in advance annually by Landlord. Tenant shall reimburse Landlord a lump sum amount for the amount of any increase in the actual costs over the amount billed by Landlord therefor, and Landlord shall refund to Tenant the amount of any decrease in the actual costs below such billed amount, at the end of each fiscal year ending December 31 for which such costs were budgeted, assessed and billed, and such charges shall be subject to an annual adjustment based upon the actual costs therefor for each fiscal year ending December 31.
INTERIOR MAINTENANCE
Section 8: Except as expressly otherwise provided herein, Tenant will maintain the interior of the Building on the Demised Premises in good order and repair, reasonable and ordinary wear and tear excepted, and all interior repairs and maintenance, including, but not limited to, the HVAC system and utility fixtures, are to be the responsibility of Tenant.
UTILITIES AND SERVICES
Section 9: Tenant shall be responsible for the payment of all utility services rendered to the Demised Premises for the Tenant’s use including but not limited to water and sewer, gas, and electric.
| 4 |
TAXES
Section 10: The payment of all taxes and assessments levied or assessed against the real estate of which the Demised Premises are a part, shall be the responsibility of Landlord and/or other owners thereof. However, Tenant shall reimburse Landlord for its prorata share of the actual costs of the gross taxes and assessments based upon the percentage which the appraised value of the real estate and improvements constituting the Demised Premises constitutes of the appraised value of all real estate and improvements assessed together with the Demised Premises. Upon the taxes and assessments being levied and assessed against the Demised Premises separately, Tenant shall reimburse Landlord the actual costs of such separately levied and assessed gross taxes and assessments. In any event, such charges shall be budgeted and billed in advance annually by Landlord, shall be payable in monthly installments to be paid with Tenant’s payments of Base Rent and shall be subject to an annual adjustment based upon the actual costs of such taxes and assessments for each fiscal year ending December 31. Additionally, Tenant shall reimburse Landlord a lump sum amount for the amount of any increase in the actual costs over the amount billed by Landlord therefor, and Landlord shall refund to Tenant the amount of any decrease in the actual costs below the amount billed by Landlord therefor, at the end of each fiscal year ending December 31 for which such costs were so budgeted and billed. Tenant shall pay any personal property taxes which may be levied against its property subject thereto.
INSURANCE; INDEMNIFICATION
Section 11: Throughout the term of this Lease Tenant will maintain in effect fire, extended coverage and special perils property insurance for the full insurable replacement value of the Demised Premises, as determined, and as determined from time to time throughout the term of this Lease, by the underwriter for Tenant’s insurer. Tenant shall name Landlord and any mortgagee as additional insureds under said policy, In case of fire, extended coverage or special perils casualty, the proceeds of such insurance shall be first applied to the repair of any damage and the surplus paid to Landlord.
Tenant shall procure and maintain during the Term of this Lease a policy of commercial general liability insurance having a combined single limit for bodily injury and property damage of not less than Three Million Dollars ($3,000,000.00), covering “occurrences” arising from or related to the use and occupancy of the Demised Premises by Tenant and its patients, employees, agents, contractors, guests and invitees, further insuring Tenant’s indemnification obligation hereunder, and naming Landlord and any mortgagee as additional insureds. At the end of each five (5) year period or term of this Lease, as the case may be, Tenant shall increase the amounts of such coverages of such liability insurance for the ensuing five (5) year period or term of this Lease, by an amount equal to the aggregate percentage increase in the U.S. Department of Labor, Bureau of Labor Statistics Consumer Price Index for all Urban Consumer, U.S. City Average, or any successor index (“CPI’) over the immediately preceding five (5) year period. Provided, that in the event an aggregate percentage decrease occurs in the CPI during any such immediately preceding five (5) year period, no adjustment in said coverage amounts shall be made and the amounts of such coverages in effect during such immediately preceding five (5) year period shall remain in effect during the ensuing five (5) year period or term. Provided, however, that the requirement of such coverage and the limits thereof as herein provided, do not limit or define Tenant’s obligation to indemnify Landlord hereunder nor limit the extent or amount of such obligation.
| 5 |
In addition, Tenant shall maintain Professional Liability Insurance with respect to its operations on the Demised Premises, with such insurance covering Tenant for all services rendered on the Premises. Tenant's Professional Liability Insurance shall provide for limits of not less than $1,000,000 per occurrence and $3,000,000 in the aggregate, per policy year. Tenant shall also maintain Fire Legal Liability insurance in the amount of $100,000. If and as permitted by the carriers for such coverages Tenant shall name Landlord and any mortgagee as additional insureds under said policies.
Tenant shall furnish to Landlord upon request a certificate of insurance issued by the insurance carrier of each of the aforesaid policies of insurance.
In the event Landlord obtains and carries income protection coverage pursuant to any policy or policies it maintains pertaining to the Demised Premises, Tenant shall reimburse Landlord the premium for such coverage, payable in monthly installments to be paid with Tenant’s payments of Base Rent, the charges for which shall be budgeted, assessed and billed in advance annually by Landlord and shall be subject to an annual adjustment based upon the actual costs thereof for each fiscal year ending December 31. Additionally, Tenant shall reimburse Landlord a lump sum amount for any increase in the actual costs over the amount billed by Landlord therefor, and Landlord shall refund to Tenant the amount of any decrease in the actual costs below such billed amount, at the end of each fiscal year ending December 31 for which such costs were budgeted, assessed and billed.
Tenant shall also be liable and responsible for any and all other insurance required for or by its use of and operation in and upon the Demised Premises, and Tenant may also carry insurance on the contents of the Demised Premises as it may desire.
Landlord shall indemnify, protect, defend and hold Tenant harmless from and against all liability, cost, expense, or damage (including, without limitation, attorneys fees) for bodily injury or property damage arising from: (i) the construction of the Demised Premises by Landlord, its contractors, agents or employees; or (ii) any defects in construction by Landlord, its contractors, agents or employees, or (iii) any failure by Landlord, its contractors, agents or employees to properly construct the Demised Premises in accordance with the approved project design of the said PM Construction, Inc. Tenant’s review and approval of any plans, specifications, or any other documents shall not relieve Landlord from Landlord’s obligations under the foregoing indemnification provision. Landlord shall procure and keep in effect from the execution date of this Lease until the completion of the Demised Premises, a Commercial General Liability insurance policy in the amount of Three Million Dollars ($3,000,000.00) per occurrence, insuring all of Landlord’s activities with respect to the Demised Premises, and a Builder’s Risk Insurance policy insuring the Demised Premises for the full replacement cost of the Demised Premises until completion. Landlord shall name Tenant as an additional insured under the Builder’s Risk Insurance policy and provide Tenant a certificate of such coverage upon request.
| 6 |
Notwithstanding the foregoing provision, Tenant shall indemnify, defend, and hold Landlord harmless from any and all claims and damages (including reasonable attorneys’ fees and costs) arising from Tenant’s occupancy and/or use of the Demised Premises or the conduct of its business or from any activity, work, or thing done, permitted, or suffered by Tenant, in or about the Demised Premises or the access ways to and from the Demised Premises. Tenant shall further indemnify, defend, and hold Landlord harmless from any and all claims and damages (including reasonable attorneys’ fees and costs) arising from any breach or default in the terms of this Lease, or arising from any act, negligence, fault, or omission of Tenant or Tenant’s agents, employees, or invitees, and from and against any and all costs, reasonable attorneys’ fees, expenses, and liabilities incurred on or about such claim or any action or proceeding brought on such claim. In case any action or proceeding shall be brought against Landlord by reason of any such claim, Tenant, on notice from Landlord, shall defend Landlord at Tenant’s expense by counsel approved in writing by Landlord, to the extent or in the event such defense is not provided by applicable insurance coverage.
Landlord shall indemnify, defend, and hold Tenant harmless from any and all claims and damages (including reasonable attorneys’ fees and costs) arising from any breach or default in the terms of this Lease, or arising from any act, negligence, fault, or omission of Landlord or Landlord’s agents, employees or contractors, and from and against any and all costs, reasonable attorneys’ fees, expenses and liabilities incurred on or about such claim or any action or proceeding brought on such claim. In case any action or proceeding shall be brought against Tenant by reason of any such claim, Landlord, on notice from Tenant, shall defend Tenant at Landlord’s expense by counsel approved in writing by Tenant, to the extent or in the event such defense is not provided by applicable insurance coverage.
DAMAGE OR DESTRUCTION OF BUILDING
Section 12: If the Demised Premises are damaged or destroyed by fire or other casualty during the term of this Lease, the rent herein reserved shall abate entirely in case the Demised Premises are, in the judgment of the Tenant, rendered untenantable, and prorata in case a part only be untenantable, until the Demised Premises or such part are restored to tenantable condition. If such damage or destruction is covered by the insurance provided for in Paragraph 11 above, the Landlord shall with due diligence, repair and restore the Demised Premises to good and tenantable condition. Provided however, that (a) if the destruction or damage amounts to more than 50% of the insurable replacement value of the Demised Premises determined as aforesaid, either Landlord or Tenant may cancel and terminate this Lease by giving written notice to the other party within 30 days after the date such damage or destruction occurs; (b) if the entire Demised Premises are, in the judgment of the Tenant, untenantable, the term of this Lease shall be extended for a period equal to the time required for repair and restoration of the Demised Premises unless terminated under Subparagraph (a) of this Paragraph.
| 7 |
EMINENT DOMAIN
Section 13: In the event that any portion or all of the Demised Premises is taken pursuant to the exercise of any power of eminent domain, the proceeds of such taking shall be divided between Landlord and Tenant as their respective interests may appear.
ASSIGNMENT; RIGHT OF FIRST REFUSAL
Section 14: (a) Tenant may not assign this Lease or sublet the Demised Premises to any other person, partnership or corporation without written consent of Landlord, which consent shall not be unreasonably withheld.
(b) In the event Landlord exercises its right to assign this Lease, pursuant to a conveyance of the Demised Premises, Landlord shall give Tenant the privilege of purchasing the Demised Premises at the same purchase price and on the other terms of the offer to purchase made by the proposed assignee, provided Tenant is not in default hereunder at such time. This privilege shall be given by a notice sent to Tenant at the Demised Premises by certified mail, fax transmission or hand delivery, requiring Tenant to accept the offer in writing and to sign a contract within the period of thirty (30) days after the mailing or receipt of such notice to purchase the Demised Premises upon such terms. The failure of Tenant to accept the offer to purchase or to sign a contract within the period provided shall not affect this Lease, except to nullify and void the aforesaid privilege of Tenant, and Landlord shall be at liberty to sell the Demised Premises to any such proposed assignee thereafter. Provided, that in the event that Tenant does not exercise such right, but the transaction with such proposed assignee does not thereafter occur, then Tenant’s privilege and right as herein described shall remain in effect for any and all subsequent proposed assignments in accordance with the aforesaid terms and conditions. Further provided, that the aforesaid right of Tenant shall not apply to any assignment of this Lease or conveyance of the Demised Premises to a party or parties related to Landlord, but further provided that such related party or parties shall accept such assignment and/or conveyance subject to this Lease and its terms and conditions, including this Section 14 and Tenant’s aforesaid right. Further provided that the terms of this Section 14 shall not apply to a collateral assignment of this Lease to a lender or lenders of Landlord or any such related party or parties.
DEFAULT
Section 15: (a) If proceedings are commenced against Tenant in any court under a bankruptcy act or for the appointment of a Trustee or Receiver of Tenant's property either before or after commencement of the Lease term, or (b) if the rent or any other payments due from Tenant under this Lease, or any part thereof, shall at any time be in arrears and unpaid for a period of 30 days after agreed due date per this Lease, or (c) if there shall be default in the performance of any other covenant or condition herein contained on the part of Tenant for more than 30 days after written notice of such default by Landlord, then Tenant’s right to possession pursuant to this Lease, if Landlord so elects, shall thereupon cease, and Landlord shall have the right to reenter or repossess the premises by summary proceedings, surrender or otherwise, and to dispossess and remove therefrom the Tenant or other occupants thereof, and its effects, without being liable to prosecution therefore. In such case, Landlord may, at its option, relet the Demised Premises as the agent of Tenant, and Tenant shall pay to Landlord the difference between the rent hereby reserved and agreed to be paid by Tenant for the portion of the term remaining at the time of reentry or repossession, and the lesser amount, if any, received or to be received under such reletting for such portion of the term, together with Landlord’s fees and costs, including reasonable attorney fees, incurred by Landlord in enforcing its remedies hereunder and reletting the Demised Premises. Tenant hereby expressly waives service of notice of intention to reenter or of instituting legal proceedings to that end.
| 8 |
RENEWAL OPTION
Section 16: Provided it is not in default hereunder, Tenant shall have the option to renew this Lease for three (3) five (5) year terms by written notice to Landlord, given at least 180 days prior to the end of the existing term or renewal term, each upon the same terms and conditions herein set forth except that the Base Rent for each renewal term may be modified by Landlord, not to exceed an increase for each successive five (5) year term of 10% of the amount of Base Rent payable during the immediately preceding five (5) year period or term of this Lease. Except as expressly otherwise indicated, reference herein to the term of this Lease shall include reference to any renewal term hereof.
ALTERATION
Section 17: Tenant shall make no alteration to the Demised Premises without prior written consent of Landlord.
LIENS
Section 18: Tenant shall not permit mechanics’ liens to be filed against the fee of the Demised Premises or against Tenant’s leasehold interest in the Demised Premises by reason of work, labor, services or materials supplied or claimed to have been supplied to Tenant or anyone holding the Demised Premises through or under Tenant, whether prior or subsequent to the commencement of the term hereof. If any mechanic’s liens shall at any time be filed against the Demised Premises based on any act or failure to act on the part of Tenant and Tenant shall fail to remove the same within thirty (30) days thereafter, such failure shall constitute a default under the provisions of this Lease. Notwithstanding the foregoing, Tenant shall have the right, at its own expense and after prior written notice to Landlord, by appropriate proceeding duly instituted and diligently prosecuted, to contest in good faith the validity or the amount of any such lien. However, if Landlord shall notify Tenant that, in the reasonable opinion of counsel, by nonpayment of any such items the Demised Premises will be subject to imminent loss or forfeiture, Tenant shall promptly cause such lien to be discharged of record.
| 9 |
ACCESS TO PREMISES
Section 19: Landlord and its representatives shall have the right to enter the Demised Premises during Tenant's normal business hours, upon reasonable advance notice, which notice shall not be required in the case of an emergency, in order to inspect the same, or to make repairs and to maintain the Demised Premises if required by the terms hereof.
LANDLORD COVENANTS
Section 20: Landlord covenants and warrants that Landlord has good title to the Demised Premises and authority to make this Lease; that Tenant, upon paying the rent and keeping and performing the covenants and conditions of this Lease on Tenant's part to be kept and performed, shall peaceably and quietly hold, occupy and enjoy the Demised Premises during the full term of the Lease without hindrance by Landlord or by any person whatsoever.
LEASE SUBORDINATE TO ENCUMBRANCES
Section 21: This Lease is subject and subordinate to any mortgages or deeds of trust now on or hereafter placed against the Demised Premises and to advances made or that may be made on account of such encumbrances, to the full extent of the principal sums secured thereby and interest thereon; provided, however, that in the event of default by Landlord upon any note secured by such mortgage or trust deed, the holder thereof shall be required to notify the Tenant of the same forthwith or lose the benefit of this provision. In the event Landlord fails to make any payment on account of principal or interest on any mortgage or deed of trust note affecting the Demised Premises, Tenant shall, upon written notice to Landlord, have the right to pay the rent accruing under this Lease directly to the holder of such mortgage or deed of trust note and to deduct any sum so paid from subsequent installments of rent due hereunder.
NOTICE AND REASONABLE CONSENT
Section 22: All notices and statements required or permitted under this Lease shall be in writing, delivered by registered or certified mail, postage prepaid, addressed as follow:
| As to Landlord: | Belpre IV, LLC | |
| 1000 Grand Central Mall | ||
| Vienna, WV 26105 | ||
| As to Tenant: | Marietta Memorial Hospital | |
| 401 Matthew Street | ||
| Marietta, OH 45750 |
Either party may at any time, in the manner set forth for giving notices to the other, designate a different address to which notices to is shall be sent. Notice shall be deemed given at the delivery time shown on the return receipt, at the time of refusal shown on said notice, or date of the first notice thereof if returned unclaimed.
| 10 |
SEVERABILITY
Section 23: In the event that any provision of this Lease is adjudged to be invalid or of no force or effect, all other provisions contained herein shall remain in full force and effect.
BINDING EFFECT
Section 24: The covenants and agreements herein contained shall extend to and be binding upon the parties hereto, their respective representatives, successors and assigns.
AMENDMENT
Section 25: No amendment, modification, or alteration of the terms hereof shall be binding unless the same is in writing, dated subsequent to the date hereof and duly executed by the parties hereto.
RESTRICTIONS ON USE
Section 26: Tenant shall not allow, permit or suffer any condition, circumstance or activity in, upon or regarding the Demised Premises which constitutes a public or private nuisance, and Tenant will observe and comply with all present and future laws, rules ordinances, and regulations of the United States of America, the State of Ohio, the County of Washington, City of Belpre, and of any other governmental or regulatory authority or agency with respect to its use and occupancy of the Demised Premises and its operations thereon, including but not limited to, environmental laws and regulations applicable thereto, and shall defend, indemnify and hold Landlord harmless from and against any and all claims, liabilities, fines, penalties, losses and expenses (including reasonable attorney fees and costs) arising in connection with Tenant’s failure to comply with the provisions of this section.
Notwithstanding any other provision of this Lease, and without limitation to the foregoing provisions of this Section 26, Tenant shall not conduct or permit to be conducted upon the Demised Premises any CT scan procedures except pursuant to the existing agreement between Tenant and Health Bridge Imaging, Limited Liability Company (“Health Bridge”), a tenant on an adjacent tract, during the term of such agreement, and, for a period ending December 31, 2013. Tenant shall also not conduct or permit to be conducted upon the Demised Premises any MRI procedures except pursuant to the existing agreement by and between Tenant and Health Bridge, for the term of said agreement.
| 11 |
LANDLORD RESTRICTIONS; LANDLORD’S RESPONSIBILITY
Section 27: With the exception of: 1) tenants leasing at, and services already being conducted on, the Development Site on December 1st, 2010 and 2) those services specified below as Noncompetitive Health Services, Landlord agrees that during the term of this Lease, Landlord shall not without the express written consent of Tenant: a) lease to any other prospective tenant intending to provide the same or similar services as Tenant at the Development Site; or b) allow any other tenant to conduct the same or similar services as Tenant at the Development Site. Landlord shall immediately notify Tenant of any other third party attempt to initiate discussions, solicit or negotiate with Landlord concerning the same or similar activities excluded by this Section 27. Landlord acknowledges and agrees that a breach or violation of this Section 27 will have an irreparable, material and adverse effect upon Tenant and that damages arising from any such breach or violation may be difficult to ascertain. However, in the event of a breach of this Section 27, Tenant may pursue actions and damages in law or equity available to Tenant.
The Development Site shall consist of all of the property owned by Landlord and Minnite Family, LLC, and the 2.890 acre tract owned by 601 Plaza L.L.C. and currently leased to Health Bridge, all reflected on that certain plat attached hereto and made a part hereof as “Exhibit D,” and specifically excluding the “Industrial Lot” of 6.578 acres.
Noncompetitive Health Services: 1) Dentists; 2) oral surgeons; 3) ophthalmologists and/or optometrists; 4) chiropractors; 5) massage therapists; 6) mental health practitioners (including psychologists and/or psychiatrists); 7) home nursing offices; 8) dialysis clinics; 9) physical therapy providers; 10) retail pharmacy; 11) durable medical equipment providers (including prosthetic and ortho tic providers) and 12) podiatrists.
Landlord represents and warrants to Tenant that Landlord has not introduced and will not do anything to introduce, onto the Demised Premises from without the Demised Premises, any toxic or hazardous materials or waste, including without limitation, material or substance having characteristics of ignitability, corrosivity, reactivity, or extraction procedure toxicity or substances or materials which are listed on any of the Environmental Protection Agency’s list of hazardous wastes, 42 U.S.C. Section 9601, et seq., 49 U.S.C. Sections 1801, et seq., 42 U.S.C. Section 6901, et seq., as the same may be amended from time to time (“Hazardous Materials”).
SIGNS
Section 28: Tenant may, at its expense, install their company’s standard sign on any existing monument sign, pole sign, or face mounted sign at the Demised Premises. Tenant shall submit to Landlord plans and specifications for such signs. All signs and installation must be approved by Landlord. Such approval shall not be unreasonably withheld. Tenant shall be responsible for all maintenance and upkeep of the signs. All additional signs (i.e. portable signs, banners, etc.) must be approved by the Landlord. Any signs permanently attached to the building are considered leasehold improvements and will remain with the Demised Premises after the end of the Lease.
| 12 |
SUBORDINATION
Section 29: Following the execution of this Lease, Landlord shall deliver to Tenant a subordination, non-disturbance and attornment agreement from Landlord’s existing lender or lenders, if any, by which such lender or lenders agree not to disturb Tenant’s possession of the Demised Premises so long as Tenant is not in material default of the terms of this Lease beyond any applicable cure period at the time if such lender or lenders foreclose on the Demised Premises. Tenant agrees to execute and deliver to Landlord any instruments that may be necessary or proper to subordinate this Lease. Additionally, both Landlord and Tenant shall execute and deliver to any lender or lenders or the other party hereto such estoppel certificates as may be reasonably requested by such lender or lenders or other party.
Tenant covenants and agrees that, during the term of this Lease, Tenant will furnish, to Landlord and any and all of Landlord’s lenders maintaining a mortgage or other security instrument against the Demised Premises, financial statements for the preceding calendar or fiscal year, within ninety (90) days after the end of each such year, prepared by certified public accountants regularly engaged by Tenant for such purposes, in such form as such statements are regularly prepared, i.e. audited, reviewed or compiled, and in accordance with generally accepted accounting principles.
MISCELLANEOUS
Section 30: a. Each party shall bear their own costs and fees incurred for the negotiation and preparation of this Lease, and none of the parties shall be considered to be the drafter of this Lease, or any provision hereof, for the purpose of any statute, case law or rule of interpretation or construction that would or might cause any provision to be construed against the drafter hereof.
b. Except as herein otherwise provided, this Lease contains the entire agreement by and between the undersigned. No promises, representations, understandings or other warranties have been made by any party respecting the subject matter hereof, other than those expressly set forth herein. The parties further state that they have carefully read this Lease, know the contents of it, and sign the same as their own free, willing and voluntary act, both individually and on behalf of the entities they represent as set forth below.
c. The execution, acknowledgment and delivery of this Lease by the parties, and the performance of the terms, covenants, conditions and obligations under this Lease, including, but not limited to, the preparation, execution and delivery of such documents as required by or pursuant to this Lease, and the doing of all things necessary to consummate the transactions herein provided, have been duly authorized or ratified, approved and confirmed, as the case may be, by all necessary action of the parties, whether by the board of directors, the shareholders, members or otherwise, and the parties each represent and warrant that each of the officers executing and delivering this Lease does so with full and complete authority to do so for and on behalf of the respective parties.
| 13 |
IN WITNESS WHEREOF, the parties hereto have executed this Lease this ______ day of ____________________ 2013.
| LANDLORD: | BELPRE IV, LLC | ||
| By: | Minnite Family, LLC, | ||
| Its Sole Member | |||
| By: | /s/ Pat Minnite, Jr. | |
| Pat Minnite, Jr. | ||
| Its: | Manager | |
| By: | /s/ Karmyn M. Conley | |
| Karmyn M. Conley | ||
| Its: | Manager | |
| By: | /s/ Pat Minnite, III | |
| Pat Minnite, III | ||
| Its: | Manager | |
| By: | /s/ Jason R. Minnite | |
| Jason R. Minnite | ||
| Its: | Manager |
| TENANT: | MARIETTA MEMORIAL HOSPITAL | ||
| By: | /s/ Scott Cantley | ||
| Scott Cantley | |||
| Its: | President and CEO | ||
| 14 |
STATE OF WEST VIRGINIA,
COUNTY OF WOOD, TO-WIT:
The foregoing instrument was acknowledged before me this 11th day of June 2013 by Pat Minnite, Jr., the Manager of Minnite Family, LLC, a West Virginia limited liability company, on behalf of said limited liability company acting as sole member of Belpre IV, LLC, a West Virginia limited liability company, on behalf of said limited liability company.
| My commission expires: | 10-19-19 | |
![]() |
/s/ Melinda L. Lott | |
| Notary Public |
STATE OF WEST VIRGINIA,
COUNTY OF WOOD, TO-WIT:
The foregoing instrument was acknowledged before me this 11th day of June 2013 by Karmyn M. Conley, the Manager of Minnite Family, LLC, a West Virginia limited liability company, on behalf of said limited liability company acting as sole member of Belpre IV, LLC, a West Virginia limited liability company, on behalf of said limited liability company.
| My commission expires: | 10-19-19 | |
![]() |
/s/ Melinda L. Lott | |
| Notary Public |
| 15 |
STATE OF WEST VIRGINIA,
COUNTY OF WOOD, TO-WIT:
The foregoing instrument was acknowledged before me this 11th day of June 2013 by Pat Minnite, III, the Manager of Minnite Family, LLC, a West Virginia limited liability company, on behalf of said limited liability company acting as sole member of Belpre IV, LLC, a West Virginia limited liability company, on behalf of said limited liability company.
| My commission expires: | 10-19-19 | |
![]() |
/s/ Melinda L. Lott | |
| Notary Public |
STATE OF WEST VIRGINIA,
COUNTY OF WOOD, TO-WIT:
The foregoing instrument was acknowledged before me this 11th day of June 2013 by Jason R. Minnite, the Manager of Minnite Family, LLC, a West Virginia limited liability company, on behalf of said limited liability company acting as sole member of Belpre IV, LLC, a West Virginia limited liability company, on behalf of said limited liability company.
| My commission expires: | 10-19-19 | |
![]() |
/s/ Melinda L. Lott | |
| Notary Public |
| 16 |
STATE OF OHIO
COUNTY OF WASHINGTON, TO WIT:
The foregoing instrument was acknowledged before me this 11th day of June 2013, by Scott Cantley, President and CEO of Marietta Memorial Hospital, an Ohio non profit corporation, on behalf of said corporation.
| My commission expires: | April 18, 2016 | |
| /s/ Deborah K. Beaver | ||
| Notary Public | ||
![]() |
| 17 |
THIS AMENDED LEASE, Made and entered into by and between Belpre IV, LLC, a West Virginia limited liability company, (hereinafter "Landlord"), and Marietta Memorial Hospital, an Ohio non profit corporation, (hereinafter "Tenant").
WHEREAS, the parties entered into an initial Lease of the Demised Premises, or a part thereof, for the purposes therein stated, executed and acknowledged June 11, 2013, and
WHEREAS, changes occurred in the plans and specifications for the construction and use of the Demised Premises and the rent paid and to be paid therefor, and the parties wish to amend said initial Lease accordingly as herein provided;
WITNESSETH: That for and in consideration of the mutual terms, covenants, provisions and conditions herein set forth, Landlord does hereby lease to Tenant, and Tenant does hereby hire and rent from Landlord those certain premises, hereinafter referred to as the “Demised Premises,” as follows:
DEMISED PREMISES
Section 1: The Demised Premises consists of and are described as the gross building area of 55,300 square feet, pursuant to the project design of Trinity Health Group of the building (“Building”), located in the Health Bridge Medical Park, with the mailing address of 799 Farson Street, Belpre, Ohio 45714, together with the real estate upon which the Building parking lots, sidewalks and heliport are located, all as shown on the plats and floor plans included in the plans and specifications hereinafter described and those attached hereto as Exhibit A, being a part of the same real estate conveyed to Landlord by Minnite Family, LLC, a West Virginia limited liability company, by two (2) deeds as follows: (i) dated July 3, 2013 and recorded in the Washington County, Ohio Recorder’s Office in Official Record 548, at Page 2183, and (ii) dated November 26, 2014 and recorded in said Recorder’s Office in Official Record 574, at Page 937.
USE OF PREMISES
Section 2: The Demised Premises shall be used and occupied by Tennant during the term hereof, including any and all renewal terms, subject to the terms, conditions and limitations herein contained, as a free standing out patient health center, and for such uses reasonably related and incidental thereto, including, but not limited to, emergency room facilities (“Emergency Room Phase”), an endoscopy unit (“Endoscopy Phase”), shared services phase, observation suite, building support, pain center, and heliport.
INITIAL TERM
Section 3: The initial term of this Lease shall be for a period of Fifteen (15) years, commencing on July 31, 2014, and ending on July 30, 2029, subject, however, to the rentals, terms and conditions hereinafter set forth.
BASE RENT
Section 4: It is hereby acknowledged and agreed that Base Rent was paid in the amount and manner provided in the initial lease through October, 2014, and that it was agreed by the parties that commencing November 2014 and thereafter that Tenant would pay Base Rent calculated in an annual amount and rate equal to ten (10%) percent of the amounts budgeted as reflected on Exhibit B and amendments to Exhibit B from time to time pursuant to change orders also referenced on Exhibit B and amendments thereto from time to time as additional portions of the Building space was constructed and completed by Landlord and made available by Landlord to Tenant for occupancy, for each year, or portion of each year on a prorated basis, for the remainder of the first five (5) years of the initial term of this Lease. It is further acknowledged and agreed that payment of Base Rent for the term of this Lease through March 31, 2016 is reflected on Exhibit A-l, and that such Base Rent has been calculated and paid in the manner described above incorporating agreed change orders 1 through 8, but that additional Base Rent attributable to agreed change order 9 incorporated in the calculation of Base Rent for the months of January, February and March 2016 has not been paid, and that, upon execution of this Amended Lease, Tenant shall execute amended Exhibit B, “effective 12-8-15,” incorporating agreed change order 9, and that such additional Base Rent in the amount of $10,491.00 shall be paid by Tenant to Landlord with the payment of the Base Rent for April 2016. It is further acknowledged and agreed that all construction by Landlord as herein defined has been completed, the entirety of the Demised Premises made available to Tenant in the manner herein provided as of March 31, 2016, and upon the execution of this Amended Lease the parties shall execute amended Exhibit B, “effective 3-31-16,” incorporating agreed change order 10 in the calculation of Base Rent, and that commencing April 1, 2016, and for the remainder of the first five (5) years of the initial term of this Lease the Base Rent shall be an annual amount of $2,474,644.00 per year, payable in monthly installments of $206,220.00 each, commencing April 1, 2016 and on the first day of each month thereafter until and unless further modified. It is further agreed that copies of Exhibit B attached to the initial lease and copies of all amended Exhibits B shall be, and are, attached hereto and referenced herein collectively as “Exhibit B.” For and during each of the remaining two (2) five (5) year periods of the initial term of this Lease all Base Rent for all purposes may be modified by Landlord, not to exceed an increase for each such successive five (5) year period of ten (10%) per cent of the amount and rate of such Base Rent in effect upon the expiration of the immediately preceding five (5) year period.
All such Base Rent shall be paid in equal monthly installments and shall be due and payable in advance on the first day of each calendar month during the term hereof. All required rental payments shall be made to Belpre IV, LLC, 1000 Grand Central Mall, Vienna, West Virginia 26105, and shall continue to be made at this address until Landlord advises of any change of address.
| 2 |
a. Late Fees: If the rental payment is not received within ten (10) days from the date due, a late fee equal to eight percent (8%) of the total outstanding rent and late fees shall be charged to Tenant monthly. Failure by the Landlord to enforce this provision in any one month shall not prevent Landlord from subsequently enforcing the same.
b. Returned Check Fees: In the event payment is made by check and such check is returned unpaid by the bank to Landlord, a returned check fee will be charged to Tenant in the amount of Thirty-Five and No/100ths ($35.00) Dollars.
CONSTRUCTION AND TENANT BUILDOUT REQUIREMENTS
Section 5: Landlord has constructed on the Demised Premises the Building, parking lots, sidewalks and heliport for the use and occupancy of Tenant, such Building, parking lots, sidewalks and heliport having been constructed and provided to Tenant as a complete turnkey project on any and all dates herein provided therefor in accordance with the project design of the said Trinity Health Group, in accordance with the project budget marked collectively as Exhibit B, including modifications by written change orders 1 through 10 of the parties reflected thereon and other changes requested by Tenant and in accordance with Exhibit A. Tenant has and shall continue to provide and construct at its cost the special buildout items described on Exhibit C.
It is acknowledged that the plans and specifications for such construction in strict compliance with the project budget reflected on Exhibit B as modified over time have been provided and approved by the parties as agreed in their initial Lease and as thereafter modified and agreed by the parties. Provided, that Landlord has made in accordance with their initial Lease and the agreement of the parties thereafter minor changes in material and construction detail described in such plans and specifications, but the quality, design and appearance of the Building and building materials were not materially altered thereby.
All construction work performed by Landlord shall be guaranteed by Landlord to Tenant for a period of one (1) year from and after the completion of such construction. However, the liability of Landlord therefor shall be limited to the repair and replacement of any such work found and determined to be defective during such one (1) year period.
EXTERIOR MAINTENANCE
Section 6: Except as expressly otherwise provided herein, Tenant shall maintain and keep the exterior of the Demised Premises in good order and repair including, but not limited to, the roof, walls, gutters, downspouts, canopies, exterior doors, supply lines for gas, electric, and water, drainage and sewer lines, entrances and exits, sidewalks, parking areas and heliport, including cleaning and maintaining sidewalks, parking areas and heliport, including, but not limited to snow and ice removal, landscaping, and providing trash removal. Landlord shall make all structural repairs to the Building and all interior repairs, by reason of any exterior or structural defect, including but not limited to, leaks, broken pipes and falling plaster.
| 3 |
COMMON AREAS
Section 7: In connection with this Lease of the Demised Premises, Landlord further grants to Tenant, its employees, agents, customers and business invitees, the non-exclusive right to use all access ways to and from the Demised Premises and public roadways. Tenant shall reimburse Landlord its prorated share of repair and maintenance costs for such access ways based upon the percentage which the gross building area of the Building constitutes of the gross building area of all buildings on premises in the Development Site, as hereinafter defined, using the access ways, in monthly installments to be paid with Tenant’s payments of Base Rent, as budgeted, assessed and billed in advance annually by Landlord. Tenant shall reimburse Landlord a lump sum amount for the amount of any increase in the actual costs over the amount billed by Landlord therefor, and Landlord shall refund to Tenant the amount of any decrease in the actual costs below such billed amount, at the end of each fiscal year ending December 31 for which such costs were budgeted, assessed and billed, and such charges shall be subject to an annual adjustment based upon the actual costs therefor for each fiscal year ending December 31.
INTERIOR MAINTENANCE
Section 8: Except as expressly otherwise provided herein, Tenant will maintain the interior of the Building on the Demised Premises in good order and repair, reasonable and ordinary wear and tear excepted, and all interior repairs and maintenance, including, but not limited to, the HVAC system and utility fixtures, are to be the responsibility of Tenant.
UTILITIES AND SERVICES
Section 9: Tenant shall be responsible for the payment of all utility services rendered to the Demised Premises for the Tenant’s use including but not limited to water and sewer, gas, and electric.
TAXES
Section 10: The payment of all taxes and assessments levied or assessed against the real estate of which the Demised Premises are a part, shall be the responsibility of Landlord and/or other owners thereof. However, Tenant shall reimburse Landlord for its prorata share of the actual costs of the gross taxes and assessments based upon the percentage which the appraised value of the real estate and improvements constituting the Demised Premises constitutes of the appraised value of all real estate and improvements assessed together with the Demised Premises. Upon the taxes and assessments being levied and assessed against the Demised Premises separately,
| 4 |
Tenant shall reimburse Landlord the actual costs of such separately levied and assessed gross taxes and assessments. In any event, such charges shall be budgeted and billed in advance annually by Landlord, shall be payable in monthly installments to be paid with Tenant’s payments of Base Rent and shall be subject to an annual adjustment based upon the actual costs of such taxes and assessments for each fiscal year ending December 31. Additionally, Tenant shall reimburse Landlord a lump sum amount for the amount of any increase in the actual costs over the amount billed by Landlord therefor, and Landlord shall refund to Tenant the amount of any decrease in the actual costs below the amount billed by Landlord therefor, at the end of each fiscal year ending December 31 for which such costs were so budgeted and billed. Tenant shall pay any personal property taxes which may be levied against its property subject thereto.
INSURANCE; INDEMNIFICATION
Section 11: Throughout the term of this Lease Tenant will maintain in effect fire, extended coverage and special perils property insurance for the full insurable replacement value of the Demised Premises, as determined, and as determined from time to time throughout the term of this Lease, by the underwriter for Tenant’s insurer. Tenant shall name Landlord and any mortgagee as additional insureds under said policy. In case of fire, extended coverage or special perils casualty, the proceeds of such insurance shall be first applied to the repair of any damage and the surplus paid to Landlord.
Tenant shall procure and maintain during the Term of this Lease a policy of commercial general liability insurance having a combined single limit for bodily injury and property damage of not less than Three Million Dollars (53,000,000.00), covering “occurrences” arising from or related to the use and occupancy of the Demised Premises by Tenant and its patients, employees, agents, contractors, guests and invitees, further insuring Tenant’s indemnification obligation hereunder, and naming Landlord and any mortgagee as additional insureds. At the end of each five (5) year period or term of this Lease, as the case may be, Tenant shall increase the amounts of such coverages of such liability insurance for the ensuing five (5) year period or term of this Lease, by an amount equal to the aggregate percentage increase in the U.S. Department of Labor, Bureau of Labor Statistics Consumer Price Index for all Urban Consumer, U.S. City Average, or any successor index (“CPI”) over the immediately preceding five (5) year period. Provided, that in the event an aggregate percentage decrease occurs in the CPI during any such immediately preceding five (5) year period, no adjustment in said coverage amounts shall be made and the amounts of such coverages in effect during such immediately preceding five (5) year period shall remain in effect during the ensuing five (5) year period or term. Provided, however, that the requirement of such coverage and the limits thereof as herein provided, do not limit or define Tenant’s obligation to indemnify Landlord hereunder nor limit the extent or amount of such obligation.
| 5 |
In addition, Tenant shall maintain Professional Liability Insurance with respect to its operations on the Demised Premises, with such insurance covering Tenant for all services rendered on the Premises. Tenant's Professional Liability Insurance shall provide for limits of not less than $1,000,000 per occurrence and $3,000,000 in the aggregate, per policy year. Tenant shall also maintain Fire Legal Liability insurance in the amount of $100,000. If and as permitted by the carriers for such coverages Tenant shall name Landlord and any mortgagee as additional insureds under said policies.
Tenant shall furnish to Landlord upon request a certificate of insurance issued by the insurance carrier of each of the aforesaid policies of insurance.
In the event Landlord obtains and carries income protection coverage pursuant to any policy or policies it maintains pertaining to the Demised Premises, Tenant shall reimburse Landlord the premium for such coverage, payable in monthly installments to be paid with Tenant’s payments of Base Rent, the charges for which shall be budgeted, assessed and billed in advance annually by Landlord and shall be subject to an annual adjustment based upon the actual costs thereof for each fiscal year ending December 31. Additionally, Tenant shall reimburse Landlord a lump sum amount for any increase in the actual costs over the amount billed by Landlord therefor, and Landlord shall refund to Tenant the amount of any decrease in the actual costs below such billed amount, at the end of each fiscal year ending December 31 for which such costs were budgeted, assessed and billed.
Tenant shall also be liable and responsible for any and all other insurance required for or by its use of and operation in and upon the Demised Premises, and Tenant may also carry insurance on the contents of the Demised Premises as it may desire.
Landlord shall indemnify, protect, defend and hold Tenant harmless from and against all liability, cost, expense, or damage (including, without limitation, attorneys fees) for bodily injury or property damage arising from: (i) the construction of the Demised Premises by Landlord, its contractors, agents or employees; or (ii) any defects in construction by Landlord, its contractors, agents or employees, or (iii) any failure by Landlord, its contractors, agents or employees to properly construct the Demised Premises in accordance with the approved project design of the said PM Construction, Inc. Tenant’s review and approval of any plans, specifications, or any other documents shall not relieve Landlord from Landlord’s obligations under the foregoing indemnification provision. Landlord shall procure and keep in effect from the execution date of this Lease until the completion of the Demised Premises, a Commercial General Liability insurance policy in the amount of Three Million Dollars ($3,000,000.00) per occurrence, insuring all of Landlord’s activities with respect to the Demised Premises, and a Builder’s Risk Insurance policy insuring the Demised Premises for the full replacement cost of the Demised Premises until completion. Landlord shall name Tenant as an additional insured under the Builder’s Risk Insurance policy and provide Tenant a certificate of such coverage upon request.
Notwithstanding the foregoing provision, Tenant shall indemnify, defend, and hold Landlord harmless from any and all claims and damages (including reasonable attorneys’ fees and costs) arising from Tenant’s occupancy and/or use of the Demised Premises or the conduct of its business or from any activity, work, or thing done, permitted, or suffered by Tenant, in or about the Demised Premises or the access ways to and from the Demised Premises. Tenant shall further indemnify, defend, and hold Landlord harmless from any and all claims and damages (including reasonable attorneys’ fees and costs) arising from any breach or default in the terms of this Lease, or arising from any act, negligence, fault, or omission of Tenant or Tenant’s agents, employees, or invitees, and from and against any and all costs, reasonable attorneys’ fees, expenses, and liabilities incurred on or about such claim or any action or proceeding brought on such claim. In case any action or proceeding shall be brought against Landlord by reason of any such claim, Tenant, on notice from Landlord, shall defend Landlord at Tenant’s expense by counsel approved in writing by Landlord, to the extent or in the event such defense is not provided by applicable insurance coverage.
| 6 |
Landlord shall indemnify, defend, and hold Tenant harmless from any and all claims and damages (including reasonable attorneys’ fees and costs) arising from any breach or default in the terms of this Lease, or arising from any act, negligence, fault, or omission of Landlord or Landlord’s agents, employees or contractors, and from and against any and all costs, reasonable attorneys’ fees, expenses and liabilities incurred on or about such claim or any action or proceeding brought on such claim. In case any action or proceeding shall be brought against Tenant by reason of any such claim, Landlord, on notice from Tenant, shall defend Tenant at Landlord’s expense by counsel approved in writing by Tenant, to the extent or in the event such defense is not provided by applicable insurance coverage.
DAMAGE OR DESTRUCTION OF BUILDING
Section 12: If the Demised Premises are damaged or destroyed by fire or other casualty during the term of this Lease, the rent herein reserved shall abate entirely in case the Demised Premises are, in the judgment of the Tenant, rendered untenantable, and prorata in case a part only be untenantable, until the Demised Premises or such part are restored to tenantable condition. If such damage or destruction is covered by the insurance provided for in Paragraph 11 above, the Landlord shall with due diligence, repair and restore the Demised Premises to good and tenantable condition. Provided however, that (a) if the destruction or damage amounts to more than 50% of the insurable replacement value of the Demised Premises determined as aforesaid, either Landlord or Tenant may cancel and terminate this Lease by giving written notice to the other party within 30 days after the date such damage or destruction occurs; (b) if the entire Demised Premises are, in the judgment of the Tenant, untenantable, the term of this Lease shall be extended for a period equal to the time required for repair and restoration of the Demised Premises unless terminated under Subparagraph (a) of this Paragraph.
EMINENT DOMAIN
Section 13: In the event that any portion or all of the Demised Premises is taken pursuant to the exercise of any power of eminent domain, the proceeds of such taking shall be divided between Landlord and Tenant as their respective interests may appear.
| 7 |
ASSIGNMENT; RIGHT OF FIRST REFUSAL
Section 14: (a) Tenant may not assign this Lease or sublet the Demised Premises to any other person, partnership or corporation without written consent of Landlord, which consent shall not be unreasonably withheld.
(b) In the event Landlord exercises its right to assign this Lease, pursuant to a conveyance of the Demised Premises, Landlord shall give Tenant the privilege of purchasing the Demised Premises at the same purchase price and on the other terms of the offer to purchase made by the proposed assignee, provided Tenant is not in default hereunder at such time. This privilege shall be given by a notice sent to Tenant at the Demised Premises by certified mail, fax transmission or hand delivery, requiring Tenant to accept the offer in writing and to sign a contract within the period of thirty (30) days after the mailing or receipt of such notice to purchase the Demised Premises upon such terms. The failure of Tenant to accept the offer to purchase or to sign a contract within the period provided shall not affect this Lease, except to nullify and void the aforesaid privilege of Tenant, and Landlord shall be at liberty to sell the Demised Premises to any such proposed assignee thereafter. Provided, that in the event that Tenant does not exercise such right, but the transaction with such proposed assignee does not thereafter occur, then Tenant’s privilege and right as herein described shall remain in effect for any and all subsequent proposed assignments in accordance with the aforesaid terms and conditions. Further provided, that the aforesaid right of Tenant shall not apply to any assignment of this Lease or conveyance of the Demised Premises to a party or parties related to Landlord, but further provided that such related party or parties shall accept such assignment and/or conveyance subject to this Lease and its terms and conditions, including this Section 14 and Tenant’s aforesaid right. Further provided that the terms of this Section 14 shall not apply to a collateral assignment of this Lease to a lender or lenders of Landlord or any such related party or parties.
DEFAULT
Section 15: (a) If proceedings are commenced against Tenant in any court under a bankruptcy act or for the appointment of a Trustee or Receiver of Tenant's property either before or after commencement of the Lease term, or (b) if the rent or any other payments due from Tenant under this Lease, or any part thereof, shall at any time be in arrears and unpaid for a period of 30 days after agreed due date per this Lease, or (c) if there shall be default in the performance of any other covenant or condition herein contained on the part of Tenant for more than 30 days after written notice of such default by Landlord, then Tenant’s right to possession pursuant to this Lease, if Landlord so elects, shall thereupon cease, and Landlord shall have the right to reenter or repossess the premises by summary proceedings, surrender or otherwise, and to dispossess and remove therefrom the Tenant or other occupants thereof, and its effects, without being liable to prosecution therefore. In such case, Landlord may, at its option, relet the Demised Premises as the agent of Tenant, and Tenant shall pay to Landlord the difference between the rent hereby reserved and agreed to be paid by Tenant for the portion of the term remaining at the time of reentry or repossession, and the lesser amount, if any, received or to be received under such reletting for such portion of the term, together with Landlord’s fees and costs, including reasonable attorney fees, incurred by Landlord in enforcing its remedies hereunder and reletting the Demised Premises. Tenant hereby expressly waives service of notice of intention to reenter or of instituting legal proceedings to that end.
| 8 |
RENEWAL OPTION
Section 16: Provided it is not in default hereunder, Tenant shall have the option to renew this Lease for three (3) five (5) year terms by written notice to Landlord, given at least 180 days prior to the end of the existing term or renewal term, each upon the same terms and conditions herein set forth, except that the Base Rent for each renewal term may be modified by Landlord, not to exceed an increase for each successive five (5) year term of 10% of the amount and rate of Base Rent in effect upon the expiration of the immediately preceding five (5) year period or term of this Lease. Except as expressly otherwise indicated, reference herein to the term of this Lease shall include reference to any renewal term hereof.
ALTERATION
Section 17: Tenant shall make no alteration to the Demised Premises without prior written consent of Landlord.
LIENS
Section 18: Tenant shall not permit mechanics’ liens to be filed against the fee of the Demised Premises or against Tenant’s leasehold interest in the Demised Premises by reason of work, labor, services or materials supplied or claimed to have been supplied to Tenant or anyone holding the Demised Premises through or under Tenant, whether prior or subsequent to the commencement of the term hereof. If any mechanic’s liens shall at any time be filed against the Demised Premises based on any act or failure to act on the part of Tenant and Tenant shall fail to remove the same within thirty (30) days thereafter, such failure shall constitute a default under the provisions of this Lease. Notwithstanding the foregoing, Tenant shall have the right, at its own expense and after prior written notice to Landlord, by appropriate proceeding duly instituted and diligently prosecuted, to contest in good faith the validity or the amount of any such lien. However, if Landlord shall notify Tenant that, in the reasonable opinion of counsel, by nonpayment of any such items the Demised Premises will be subject to imminent loss or forfeiture, Tenant shall promptly cause such lien to be discharged of record.
| 9 |
ACCESS TO PREMISES
Section 19: Landlord and its representatives shall have the right to enter the Demised Premises during Tenant's normal business hours, upon reasonable advance notice, which notice shall not be required in the case of an emergency, in order to inspect the same, or to make repairs and to maintain the Demised Premises if required by the terms hereof.
LANDLORD COVENANTS
Section 20: Landlord covenants and warrants that Landlord has good title to the Demised Premises and authority to make this Lease; that Tenant, upon paying the rent and keeping and performing the covenants and conditions of this Lease on Tenant's part to be kept and performed, shall peaceably and quietly hold, occupy and enjoy the Demised Premises during the full term of the Lease without hindrance by Landlord or by any person whatsoever.
LEASE SUBORDINATE TO ENCUMBRANCES
Section 21: This Lease is subject and subordinate to any mortgages or deeds of trust now on or hereafter placed against the Demised Premises and to advances made or that may be made on account of such encumbrances, to the full extent of the principal sums secured thereby and interest thereon; provided, however, that in the event of default by Landlord upon any note secured by such mortgage or trust deed, the holder thereof shall be required to notify the Tenant of the same forthwith or lose the benefit of this provision. In the event Landlord fails to make any payment on account of principal or interest on any mortgage or deed of trust note affecting the Demised Premises, Tenant shall, upon written notice to Landlord, have the right to pay the rent accruing under this Lease directly to the holder of such mortgage or deed of trust note and to deduct any sum so paid from subsequent installments of rent due hereunder.
NOTICE AND REASONABLE CONSENT
Section 22: All notices and statements required or permitted under this Lease shall be in writing, delivered by registered or certified mail, postage prepaid, addressed as follow:
| As to Landlord: | Belpre IV, LLC | |
| 1000 Grand Central Mall | ||
| Vienna, WV 26105 | ||
| As to Tenant: | Marietta Memorial Hospital | |
| 401 Matthew Street | ||
| Marietta, OH 45750 |
| 10 |
Either party may at any time, in the manner set forth for giving notices to the other, designate a different address to which notices to is shall be sent. Notice shall be deemed given at the delivery time shown on the return receipt, at the time of refusal shown on said notice, or date of the first notice thereof if returned unclaimed.
SEVERABILITY
Section 23: In the event that any provision of this Lease is adjudged to be invalid or of no force or effect, all other provisions contained herein shall remain in full force and effect.
BINDING EFFECT
Section 24: The covenants and agreements herein contained shall extend to and be binding upon the parties hereto, their respective representatives, successors and assigns.
AMENDMENT
Section 25: No amendment, modification, or alteration of the terms hereof shall be binding unless the same is in writing, dated subsequent to the date hereof and duly executed by the parties hereto.
RESTRICTIONS ON USE
Section 26: Tenant shall not allow, permit or suffer any condition, circumstance or activity in, upon or regarding the Demised Premises which constitutes a public or private nuisance, and Tenant will observe and comply with all present and future laws, rules ordinances, and regulations of the United States of America, the State of Ohio, the County of Washington, City of Belpre, and of any other governmental or regulatory authority or agency with respect to its use and occupancy of the Demised Premises and its operations thereon, including but not limited to, environmental laws and regulations applicable thereto, and shall defend, indemnify and hold Landlord harmless from and against any and all claims, liabilities, fines, penalties, losses and expenses (including reasonable attorney fees and costs) arising in connection with Tenant’s failure to comply with the provisions of this section.
LANDLORD RESTRICTIONS; LANDLORD’S RESPONSIBILITY
Section 27: With the exception of: 1) tenants leasing at, and services already being conducted on, the Development Site on December 1st, 2010 and 2) those services specified below as Noncompetitive Health Services, Landlord agrees that during the term of this Lease, Landlord shall not without the express written consent of Tenant: a) lease to any other prospective tenant intending to provide the same or similar services as Tenant at the Development Site; or b) allow any other tenant to conduct the same or similar services as Tenant at the Development Site. Landlord shall immediately notify Tenant of any other third party attempt to initiate discussions, solicit or negotiate with Landlord concerning the same or similar activities excluded by this Section 27. Landlord acknowledges and agrees that a breach or violation of this Section 27 will have an irreparable, material and adverse effect upon Tenant and that damages arising from any such breach or violation may be difficult to ascertain. However, in the event of a breach of this Section 27, Tenant may pursue actions and damages in law or equity available to Tenant.
| 11 |
The Development Site shall consist of all of the property owned by Landlord and Minnite Family, LLC, and the 2.819 acre tract owned by 601 Plaza L.L.C. and currently leased to Health Bridge, all reflected on that certain plat attached hereto and made a part hereof as “Exhibit D,” and specifically excluding the tract of 5.972 acres owned by 601 Plaza L.L.C. and reflected on Exhibit D.
Noncompetitive Health Services: 1) Dentists; 2) oral surgeons; 3) ophthalmologists and/or optometrists; 4) chiropractors; 5) massage therapists; 6) mental health practitioners (including psychologists and/or psychiatrists); 7) home nursing offices; 8) dialysis clinics; 9) physical therapy providers; 10) retail pharmacy; 11) durable medical equipment providers (including prosthetic and orthotic providers) and 12) podiatrists.
Landlord represents and warrants to Tenant that Landlord has not introduced and will not do anything to introduce, onto the Demised Premises from without the Demised Premises, any toxic or hazardous materials or waste, including without limitation, material or substance having characteristics of ignitability, corrosivity, reactivity, or extraction procedure toxicity or substances or materials which are listed on any of the Environmental Protection Agency’s list of hazardous wastes, 42 U.S.C. Section 9601, et seq., 49 U.S.C. Sections 1801, et seq., 42 U.S.C. Section 6901, et seq., as the same may be amended from time to time (“Hazardous Materials”).
SIGNS
Section 28: Tenant may, at its expense, install their company’s standard sign on any existing monument sign, pole sign, or face mounted sign at the Demised Premises. Tenant shall submit to Landlord plans and specifications for such signs. All signs and installation must be approved by Landlord. Such approval shall not be unreasonably withheld. Tenant shall be responsible for all maintenance and upkeep of the signs. All additional signs (i.e. portable signs, banners, etc.) must be approved by the Landlord. Any signs permanently attached to the building are considered leasehold improvements and will remain with the Demised Premises after the end of the Lease.
| 12 |
SUBORDINATION
Section 29: Following the execution of this Lease, Landlord shall deliver to Tenant a subordination, non-disturbance and attornment agreement from Landlord’s existing lender or lenders, if any, by which such lender or lenders agree not to disturb Tenant’s possession of the Demised Premises so long as Tenant is not in material default of the terms of this Lease beyond any applicable cure period at the time if such lender or lenders foreclose on the Demised Premises. Tenant agrees to execute and deliver to Landlord any instruments that may be necessary or proper to subordinate this Lease. Additionally, both Landlord and Tenant shall execute and deliver to any lender or lenders or the other party hereto such estoppel certificates as may be reasonably requested by such lender or lenders or other party.
Tenant covenants and agrees that, during the term of this Lease, Tenant will furnish, to Landlord and any and all of Landlord’s lenders maintaining a mortgage or other security instrument against the Demised Premises, financial statements for the preceding calendar or fiscal year, within ninety (90) days after the end of each such year, prepared by certified public accountants regularly engaged by Tenant for such purposes, in such form as such statements are regularly prepared, i.e. audited, reviewed or compiled, and in accordance with generally accepted accounting principles.
MISCELLANEOUS
Section 30: a. Each party shall bear their own costs and fees incurred for the negotiation and preparation of this Lease, and none of the parties shall be considered to be the drafter of this Lease, or any provision hereof, for the purpose of any statute, case law or rule of interpretation or construction that would or might cause any provision to be construed against the drafter hereof.
b. Except as herein otherwise provided, this Lease contains the entire agreement by and between the undersigned. No promises, representations, understandings or other warranties have been made by any party respecting the subject matter hereof, other than those expressly set forth herein. The parties further state that they have carefully read this Lease, know the contents of it, and sign the same as their own free, willing and voluntary act, both individually and on behalf of the entities they represent as set forth below.
c. The execution, acknowledgment and delivery of this Lease by the parties, and the performance of the terms, covenants, conditions and obligations under this Lease, including, but not limited to, the preparation, execution and delivery of such documents as required by or pursuant to this Lease, and the doing of all things necessary to consummate the transactions herein provided, have been duly authorized or ratified, approved and confirmed, as the case may be, by all necessary action of the parties, whether by the board of directors, the shareholders, members or otherwise, and the parties each represent and warrant that each of the officers executing and delivering this Lease does so with full and complete authority to do so for and on behalf of the respective parties.
d. All of the aforesaid Exhibits are attached to and made a part of this Lease.
| 13 |
IN WITNESS WHEREOF, the parties hereto have executed this Amended Lease this 14th day of April 2016.
| LANDLORD: | BELPRE IV, LLC | ||
| By: | Minnite Family, LLC, | ||
| Its Sole Member | |||
| By: | /s/ Pat Minnite, Jr. | |
| Pat Minnite, Jr. | ||
| Its: | Manager | |
| By: | /s/ Karmyn M. Conley | |
| Karmyn M. Conley | ||
| Its: | Manager | |
| By: | /s/ Pat Minnite, III | |
| Pat Minnite, III | ||
| Its: | Manager | |
| By: | /s/ Jason R. Minnite | |
| Jason R. Minnite | ||
| Its: | Manager |
| TENANT: | MARIETTA MEMORIAL HOSPITAL | ||
| By: | /s/ Scott Cantley | ||
| Scott Cantley | |||
| Its: | President and CEO | ||
| 14 |
STATE OF WEST VIRGINIA,
COUNTY OF WOOD, TO-WIT:
The foregoing instrument was acknowledged before me this 14th day of April 2016 by Pat Minnite, Jr., the Manager of Minnite Family, LLC, a West Virginia limited liability company, on behalf of said limited liability company acting as sole member of Belpre IV, LLC, a West Virginia limited liability company, on behalf of said limited liability company.
| My commission expires: | 10-19-19 | |
![]() |
/s/ Melinda L. Lott | |
| Notary Public |
STATE OF WEST VIRGINIA,
COUNTY OF WOOD, TO-WIT:
The foregoing instrument was acknowledged before me this 14th day of April 2016 by Karmyn M. Conley, the Manager of Minnite Family, LLC, a West Virginia limited liability company, on behalf of said limited liability company acting as sole member of Belpre IV, LLC, a West Virginia limited liability company, on behalf of said limited liability company.
| My commission expires: | 10-19-19 | |
![]() |
/s/ Melinda L. Lott | |
| Notary Public |
| 15 |
STATE OF WEST VIRGINIA,
COUNTY OF WOOD, TO-WIT:
The foregoing instrument was acknowledged before me this 14th day of April 2016 by Pat Minnite, III, the Manager of Minnite Family, LLC, a West Virginia limited liability company, on behalf of said limited liability company acting as sole member of Belpre IV, LLC, a West Virginia limited liability company, on behalf of said limited liability company.
| My commission expires: | 10-19-19 | |
![]() |
/s/ Melinda L. Lott | |
| Notary Public |
STATE OF WEST VIRGINIA,
COUNTY OF WOOD, TO-WIT:
The foregoing instrument was acknowledged before me this 14th day of April 2016 by Jason R. Minnite, the Manager of Minnite Family, LLC, a West Virginia limited liability company, on behalf of said limited liability company acting as sole member of Belpre IV, LLC, a West Virginia limited liability company, on behalf of said limited liability company.
| My commission expires: | 10-19-19 | |
![]() |
/s/ Melinda L. Lott | |
| Notary Public |
| 16 |
STATE OF OHIO
COUNTY OF WASHINGTON, TO WIT:
The foregoing instrument was acknowledged before me this 15th day of April 2016, by Scott Cantley, President and CEO of Marietta Memorial Hospital, an Ohio non profit corporation, on behalf of said corporation.
| My commission expires: | April 18, 2016 | |
| /s/ Deborah K. Beaver | ||
| Notary Public | ||
![]() |
| 17 |
EXHIBIT A
EXHIBIT A-1
| RUN DATE: 04/01/16 | Belpre, IV, LLC | Page 1 of 3 |
| AR Payment Register (Current and History - Detail) | ||
| Bank ID: All |
| Check No. / Payment ID | Payee Name / Customer Name | Invoice No. / Account Number | Amount Paid | |||||
| BANK: A - UNITED BANK | ||||||||
| DEPOSIT: 2 | DATE: 08/28/14 | |||||||
| 047503 | Marietta Memorial/Aug. 14 | Check | $ | 80,000.00 | ||||
| Marietta Memorial Hospital (MMH345) | Payment on Account | $ | 80,000.00 | |||||
| CHECK # 047503 TOTAL: | $ | 80,000.00 | ||||||
| DEPOSIT 2 TOTAL: | $ | 80,000.00 | ||||||
| DEPOSIT: 3 | DATE: 09/04/14 | |||||||
| 1 | Marietta Memorial Hospital | Transfer | $ | 0.00 | ||||
| Marietta Memorial Hospital (MMH345) | Invoice : -UA000001 | $ | (80,000.00 | ) | ||||
| Marietta Memorial Hospital (MMH345) | Invoice : 000001 | $ | 80,000.00 | |||||
| TRANSFER TOTAL: | $ | 0.00 | ||||||
| DEPOSIT 3 TOTAL: | $ | 0.00 | ||||||
| DEPOSIT: 4 | DATE: 09/18/14 | |||||||
| 048282 | Marietta Memorial/Aug. 14 | Check | $ | 80,000.00 | ||||
| Marietta Memorial Hospital (MMH345) | Invoice : 000002 | $ | 80,000.00 | |||||
| CHECK # 048282 TOTAL: | $ | 80,000.00 | ||||||
| DEPOSIT 4 TOTAL: | $ | 80,000.00 | ||||||
| DEPOSIT: 5 | DATE: 10/06/14 | |||||||
| 050570 | Marietta Memorial/Oct. 14 | Check | $ | 80,000.00 | ||||
| Marietta Memorial Hospital (MMH345) | Invoice : 10201401 | $ | 80,000.00 | |||||
| CHECK # 050570 TOTAL: | $ | 80,000.00 | ||||||
| DEPOSIT 5 TOTAL: | $ | 80,000.00 | ||||||
| DEPOSIT: 6 | DATE: 11/10/14 | |||||||
| 141107 | Marietta Memorial/Nov. 14 | Check | $ | 162,600.00 | ||||
| Marietta Memorial Hospital (MMH345) | Invoice : 11201401 | $ | 162,600.00 | |||||
| CHECK # 141107 TOTAL: | $ | 162,600.00 | ||||||
| DEPOSIT 6 TOTAL: | $ | 162,600.00 | ||||||
| DEPOSIT: 7 | DATE: 12/08/14 | |||||||
| 141205 | Marietta Memorial/Dec. 14 | Check | $ | 162,600.00 | ||||
| Marietta Memorial Hospital (MMH345) | Invoice : 12201401 | $ | 162,600.00 | |||||
| CHECK # 141205 TOTAL: | $ | 162,600.00 | ||||||
| DEPOSIT 7 TOTAL: | $ | 162,600.00 | ||||||
| DEPOSIT: 8 | DATE: 01/16/15 | |||||||
| 141231 | Marietta Memorial/Jan. 15 | Check | $ | 162,600 00 | ||||
| Marietta Memorial Hospital (MMH345) | Invoice : 01201501 | $ | 162,600 00 | |||||
| CHECK # 141231 TOTAL: | $ | 162,600.00 | ||||||
| DEPOSIT 8 TOTAL: | $ | 162,600.00 | ||||||
| DEPOSIT: 9 | DATE: 01/30/15 | |||||||
| 150129 | Marietta Memorial/Feb. 15 | Check | $ | 162,600.00 | ||||
| Marietta Memorial Hospital (MMH345) | Payment on Account | $ | 162,600.00 | |||||
| CHECK # 150129 TOTAL: | $ | 162,600.00 | ||||||
| DEPOSIT 9 TOTAL: | $ | 162,600.00 | ||||||
| DEPOSIT: 10 | DATE: 02/27/15 | |||||||
| 150226 | Marietta Memorial/March 15 | Check | $ | 162,600.00 | ||||
| Marietta Memorial Hospital (MMH345) | Invoice : -UA000002 | $ | (162,600.00 | ) | ||||
| Marietta Memorial Hospital (MMH345) | Invoice : 02201501 | $ | 162,600.00 | |||||
| Marietta Memorial Hospital (MMH345) | Payment on Account | $ | 162,600.00 | |||||
| CHECK # 150226 TOTAL: | $ | 162,600.00 | ||||||
| DEPOSIT 10 TOTAL: | $ | 162,600.00 | ||||||
| RUN DATE: 04/01/16 | Belpre, IV, LLC | Page 2 of 3 |
| AR Payment Register (Current and History - Detail) | ||
| Bank ID: All |
| Check No. / Payment ID | Payee Name / Customer Name | Invoice No. / Account Number | Amount Paid | |||||
| BANK: A - UNITED BANK | ||||||||
| DEPOSIT: 11 | DATE: 04/02/15 | |||||||
| 150401 | Marietta Memorial/April 15 | Check | $ | 162,600.00 | ||||
| Marietta Memorial Hospital (MMH345) | Invoice : -UA000003 | $ | (162,600.00 | ) | ||||
| Marietta Memorial Hospital (MMH345) | Invoice : 03201501 | $ | 162,600.00 | |||||
| Marietta Memorial Hospital (MMH345) | Invoice : 04201501 | $ | 162,600.00 | |||||
| CHECK # 150401 TOTAL: | $ | 162,600.00 | ||||||
| DEPOSIT 11 TOTAL: | $ | 162,600.00 | ||||||
| DEPOSIT: 12 | DATE: 05/04/15 | |||||||
| 150501 | Marietta Memorial/May 15 | Check | $ | 162,600.00 | ||||
| Marietta Memorial Hospital (MMH345) | Invoice : 05201501 | $ | 162,600.00 | |||||
| CHECK # 150501 TOTAL: | $ | 162,600.00 | ||||||
| DEPOSIT 12 TOTAL: | $ | 162,600.00 | ||||||
| DEPOSIT: 13 | DATE: 05/11/15 | |||||||
| 150508 | Marietta Memorial/rent increas | Check | $ | 42,994.50 | ||||
| Marietta Memorial Hospital (MMH345) | Invoice : 04201502 | $ | 14,331.50 | |||||
| Marietta Memorial Hospital (MMH345) | Invoice : 05201501 | $ | 28,663.00 | |||||
| CHECK # 150508 TOTAL: | $ | 42,994.50 | ||||||
| DEPOSIT 13 TOTAL: | $ | 42,994.50 | ||||||
| DEPOSIT: 14 | DATE: 06/08/15 | |||||||
| 150605 | Marietta Memorial/June 2015 | Check | $ | 191,263.00 | ||||
| Marietta Memorial Hospital (MMH345) | Invoice : 06201501 | $ | 191,263.00 | |||||
| CHECK # 150605 TOTAL: | $ | 191,263.00 | ||||||
| DEPOSIT 14 TOTAL: | $ | 191,263.00 | ||||||
| DEPOSIT: 15 | DATE: 07/06/15 | |||||||
| 150702 | Marietta Memorial/July 2015 | Check | $ | 191,263.00 | ||||
| Marietta Memorial Hospital (MMH345) | Payment on Account | $ | 191,263.00 | |||||
| CHECK # 150702 TOTAL: | $ | 191,263.00 | ||||||
| DEPOSIT 15 TOTAL: | $ | 191,263.00 | ||||||
| DEPOSIT: 16 | DATE: 08/14/15 | |||||||
| 150813 | Marietta Memorial/Aug. 2015 | Check | $ | 191,263.00 | ||||
| Marietta Memorial Hospital (MMH345) | Invoice : -UA000004 | $ | (191,263.00 | ) | ||||
| Marietta Memorial Hospital (MMH345) | Invoice : 07201501 | $ | 191,263.00 | |||||
| Marietta Memorial Hospital (MMH345) | Invoice : 08201501 | $ | 191,263.00 | |||||
| CHECK # 150813 TOTAL: | $ | 191,263.00 | ||||||
| DEPOSIT 16 TOTAL: | $ | 191,263.00 | ||||||
| DEPOSIT: 17 | DATE: 08/28/15 | |||||||
| 150827 | Marietta Memorial/Sept. 2015 | Check | $ | 191,263.00 | ||||
| Marietta Memorial Hospital (MMH345) | Payment on Account | $ | 191,263.00 | |||||
| CHECK # 150827 TOTAL: | $ | 191,263.00 | ||||||
| DEPOSIT 17 TOTAL: | $ | 191,263.00 | ||||||
| DEPOSIT: 18 | DATE: 10/02/15 | |||||||
| 151001 | Marietta Memorial /Oct. 2015 | Check | $ | 191,263.00 | ||||
| Marietta Memorial (MMH345) | Invoice : -UA000005 | $ | (191,263.00 | ) | ||||
| Marietta Memorial (MMH345) | Invoice : 09201501 | $ | 191,263 00 | |||||
| Marietta Memorial (MMH345) | Invoice : 10201501 | $ | 191,263.00 | |||||
| CHECK # 151001 TOTAL: | $ | 191,263.00 | ||||||
| DEPOSIT 18 TOTAL: | $ | 191,263.00 | ||||||
| RUN DATE: 04/01/16 | Belpre, IV, LLC | Page 3 or 3 |
| AR Payment Register (Current and History - Detail) | ||
| Bank ID: All |
| Check No. / Payment ID | Payee Name / Customer Name | Invoice No. / Account Number | Amount Paid | |||||
| BANK: A - UNITED BANK | ||||||||
| DEPOSIT: 19 | DATE: 11/09/15 | |||||||
| 151106 | Marietta Memorial /Nov. 2015 | Check | $ | 191,263.00 | ||||
| Marietta Memorial (MMH345) | Invoice : 11201501 | $ | 191,263.00 | |||||
| CHECK# 151106 TOTAL: | $ | 191,263.00 | ||||||
| DEPOSIT 19 TOTAL: | $ | 191,263.00 | ||||||
| DEPOSIT: 20 | DATE: 12/11/15 | |||||||
| 121115 | Marietta Memorial /Dec. 2015 | Check | $ | 191,263.00 | ||||
| Marietta Memorial (MMH345) | Invoice : 12201501 | $ | 191,263.00 | |||||
| CHECK # 121115 TOTAL: | $ | 191,263.00 | ||||||
| DEPOSIT 20 TOTAL: | $ | 191,263.00 | ||||||
| DEPOSIT: 21 | DATE: 01/13/16 | |||||||
| 160107 | Marietta Memorial /RNT RET INS | Check | $ | 193,385.46 | ||||
| Marietta Memorial (MMH345) | Payment on Account | $ | 193,385.46 | |||||
| CHECK # 160107 TOTAL: | $ | 193,385.46 | ||||||
| DEPOSIT 21 TOTAL: | $ | 193,385.46 | ||||||
| DEPOSIT: 22 | DATE: 01/14/16 | |||||||
| 1 | Marietta Memorial | Transfer | $ | 0.00 | ||||
| Marietta Memorial (MMH345) | Invoice : 11073 | $ | 1,848.00 | |||||
| Marietta Memorial (MMH345) | Invoice: 11069 | $ | 274.46 | |||||
| Marietta Memorial (MMH345) | Invoice : -UA000006 | $ | (193,385.46 | ) | ||||
| Marietta Memorial (MMH345) | Invoice : 01201601 | $ | 191,263.00 | |||||
| TRANSFER TOTAL: | $ | 0.00 | ||||||
| DEPOSIT 22 TOTAL: | $ | 0.00 | ||||||
| DEPOSIT: 23 | DATE: 02/06/16 | |||||||
| 160204 | Marietta Memorial /Feb. 2016 | Check | $ | 191,263.00 | ||||
| Marietta Memorial (MMH345) | Invoice : 02201601 | $ | 191,263.00 | |||||
| CHECK # 160204 TOTAL: | $ | 191,263.00 | ||||||
| DEPOSIT 23 TOTAL: | $ | 191,263.00 | ||||||
| DEPOSIT: 24 | DATE: 03/04/16 | |||||||
| 160303 | Marietta Memorial /March, RET | Check | $ | 276,742.78 | ||||
| Marietta Memorial (MMH345) | Invoice : 11129 | $ | 85,479.78 | |||||
| Marietta Memorial (MMH345) | Invoice: 03201601 | $ | 191,263.00 | |||||
| CHECK # 160303 TOTAL: | $ | 276,742.78 | ||||||
| DEPOSIT 24 TOTAL: | $ | 276,742.78 | ||||||
| TOTAL FOR BANK ID: A | $ | 3,421,426.74 | ||||||
| GRAND TOTAL OF ALL CHECKS: | $ | 3,421,426.74 | ||||||
| GRAND TOTAL OF ALL CREDIT CARDS: | $ | 0.00 | ||||||
| GRAND TOTAL OF ALL CASH: | $ | 0.00 | ||||||
| GRAND TOTAL OF ALL EFT: | $ | 0.00 | ||||||
| GRAND TOTAL OF ALL PAYMENTS: | $ | 3,421,4268.74 | ||||||
| GRAND TOTAL OF ALL ADJUSTMENTS: | $ | 0.00 | ||||||
| COMBINED TOTAL: | $ | 3,421,426.74 | ||||||
EXHIBIT B
DEVELOPMENT BUDGET FOR WORK COMPLETED AS OF 10-1-14
BELPRE EMERGENCY CARE/ENDOSCOPY CENTER
| Area - Sq. Ft. | Description | Sq. Ft. Cost | Total | Work Completed to Date 10-1-14 | ||||||||||||||
| 1. | 55,300 | Shell and Core | $ | 110.00 | $ | 6,083,000 | $ | 6,083,000 | ||||||||||
| 2. | 14,800 | Emergency Room | $ | 225.00 | $ | 3,330,000 | $ | 3,330,000 | ||||||||||
| 3. | 1,180 | Laboratory | $ | 215.00 | $ | 253,700 | $ | 253,700 | ||||||||||
| 4. | 8,350 | Endoscopy | $ | 215.00 | $ | 1,784,500 | ||||||||||||
| 5. | 2,100 | Time Share | $ | 100.00 | $ | 210,000 | $ | 210,000 | ||||||||||
| 6. | 2,900 | Building Support | $ | 125.00 | $ | 188,500 | $ | 188,500 | ||||||||||
| 7. | 8,353 | Public and Administration Areas | $ | 125.00 | $ | 1,044,125 | $ | 1,044,125 | ||||||||||
| 8. | New Radiographic Equipment Infrastructure | $ | 200,000 | $ | 200,000 | |||||||||||||
| 9. | New CT Scanner Infrastructure | $ | 200,000 | $ | 200,000 | |||||||||||||
| 10 | 862 | Information Technology | $ | 95.00 | $ | 124,000 | $ | 124,000 | ||||||||||
| 11 | 3,180 | Canopies | $ | 150.00 | $ | 477,000 | $ | 477,000 | ||||||||||
| 12 | 4 acres | Site Work (4.0 AC), 176,000 sq. ft. parking, access roads, paving, lighting, utilities, sidewalks | $ | 6.00 | $ | 1,056,000 | $ | 1,056,000 | ||||||||||
| 13 | Foundation Reinforcement | $ | 350,000 | $ | 350,000 | |||||||||||||
| 14 | Emergency back-up generator | $ | 300,000 | $ | 300,000 | |||||||||||||
| 15 | Professional design fees | $ | 368,000 | $ | 368,000 | |||||||||||||
| 16 | Stair lower and elevators | $ | 640,000 | $ | 640,000 | |||||||||||||
| 17 | 16,755 | Shell space 1st and 2nd floor - physician's offices | $ | 100.00 | $ | 1,675,500 | ||||||||||||
| 18 | Contingency allowance for Interior construction | $ | 1,000,000 | $ | 1,000,000 | |||||||||||||
| a. Boiler System for HVAC and underfloor heat (add into contingency allowance) | ||||||||||||||||||
| b. Class I-2 construction (add into contingency allowance) | ||||||||||||||||||
| TOTAL CONSTRUCTION BUDGET | $ | 19,284,325 | $ | 15,824,325 | ||||||||||||||
| Land Value (4 acres @ $200,000 per acre) | $ | 800.000 | $ | 800,000 | ||||||||||||||
| TOTAL PROJECTED BUDGET | $ | 20,084,325 | $ | 16,624,325 | ||||||||||||||
| Total Change Orders 1-7 approved as of 10-1-14 | $ | 2,887,674 | ||||||||||||||||
| TOTAL WORK COMPLETED TO DATE 10-1-14 INCLUDES CHANGE ORDERS 1-7 | $ | 19,511,999 | ||||||||||||||||
| Rent for Physician's office space 16,755 sq. ft. @ $21.50 | $ | 360,232.50/year | ||||||||||||||||
| Rent for remainder of building 38,545 sq. ft. @ $39.38 | $ | 1,517,902.10/year | ||||||||||||||||
| Total building rent for 55,300 sq. ft. | $ | 1,878,134.50/year | ||||||||||||||||
| TENANT: MARIETTA MEMORIAL HOSPITAL | ||
| Approved by: | ![]() |
|
| Title | VP | |
| Date | 10-1-14 | |
| LANDLORD: Belpre IV, LLC | ||
| Approved by: | |
|
| Title | ||
| Date | 10/1/14 | |
ADDITIONAL CHANGE ORDERS NOT INCLUDED IN TOTAL COST:
| 1. | SIGNAGE |
| 2. | EXTERIOR ELEVATOR |
| 3. | ADDITIONAL LAND FOR HELIPORT |
| 4. | ADDITIONAL LAND FRONT CORNER ENTRY |
| 5. | OPERATING ROOMS |
| 6. | ADDITIONAL LANDSCAPING |
| $ | 19,511,999 | |||||
| X 10 | % | |||||
| Rent for work completed to date | $ | 1,951,200 | Per Year | |||
| Effective October 30, 2014 | $ | 162,600 | Per Month |
EXHIBIT B
DEVELOPMENT BUDGET FOR WORK COMPLETED AS OF 4-15-15
BELPRE EMERGENCY CARE/ENDOSCOPY CENTER
| Area - Sq. Ft. | Description | Sq. Ft. Cost | Total | Work Completed to Date 4-15-15 | ||||||||||||||
| 1. | 55,300 | Shell and Core | $ | 110.00 | $ | 6,083,000 | $ | 6,083,000 | ||||||||||
| 2. | 14,800 | Emergency Room | $ | 225.00 | $ | 3,330,000 | $ | 3,330,000 | ||||||||||
| 3. | 1,180 | Laboratory | $ | 215.00 | $ | 253,700 | $ | 253,700 | ||||||||||
| 4. | 8,350 | Endoscopy | $ | 215.00 | $ | 1,784,500 | $ | 1,784,500 | ||||||||||
| 5. | 2,100 | Time Share | $ | 100.00 | $ | 210,000 | $ | 210,000 | ||||||||||
| 6. | 2,900 | Building Support | $ | 125.00 | $ | 188,500 | $ | 188,500 | ||||||||||
| 7. | 8,353 | Public and Administration Areas | $ | 125.00 | $ | 1,044,125 | $ | 1,044,125 | ||||||||||
| 8. | New Radiographic Equipment Infrastructure | $ | 200,000 | $ | 200,000 | |||||||||||||
| 9. | New CT Scanner Infrastructure | $ | 200,000 | $ | 200,000 | |||||||||||||
| 10 | 862 | Information Technology | $ | 95.00 | $ | 124,000 | $ | 124,000 | ||||||||||
| 11 | 3,180 | Canopies | $ | 150.00 | $ | 477,000 | $ | 477,000 | ||||||||||
| 12 | 4 acres | Site Work (4. 0 AC), 176,000 sq. ft. parking, access roads, paving, lighting, utilities, sidewalks | $ | 6.00 | $ | 1,056,000 | $ | 1,056,000 | ||||||||||
| 13 | Foundation Reinforcement | $ | 350,000 | $ | 350,000 | |||||||||||||
| 14 | Emergency back-up generator | $ | 300,000 | $ | 300,000 | |||||||||||||
| 15 | Professional design fees | $ | 368,000 | $ | 368,000 | |||||||||||||
| 16 | Stair tower and elevators | $ | 640,000 | $ | 640,000 | |||||||||||||
| 17 | 16,755 | Shell space 1st and 2nd floor - physician's offices | $ | 100.00 | $ | 1,675,500 | $ | 600,000 | ||||||||||
| 18 | Contingency allowance for interior construction | $ | 1,000,000 | $ | 1,000,000 | |||||||||||||
| a. Boiler System for HVAC and underfloor heat (add into contingency allowance) | ||||||||||||||||||
| b. Class I-2 construction (add into contingency allowance) | ||||||||||||||||||
| TOTAL CONSTRUCTION BUDGET | $ | 19,284,325 | $ | 18,208,825 | ||||||||||||||
| Land Value (4 acres @ $200,000 per acre) | $ | 800,000 | $ | 800,000 | ||||||||||||||
| TOTAL PROJECTED BUDGET | $ | 20,084,325 | $ | 19,008,825 | ||||||||||||||
| Total Change Orders 1-8 approved as of 12-22-14 | $ | 3,942,683 | ||||||||||||||||
| TOTAL WORK COMPLETED TO DATE 4-15-15 INCLUDES CHANGE ORDERS 1-8 | $ | 22,951,508 | ||||||||||||||||
| Rent for Physician's office space 16,755 sq. ft. @ $21.50 | $ | 360,232.50/year | ||||||||||||||||
| Rent for remainder of building 38,545 sq. ft. @ $39.38 | $ | 1,517,902.10/year | ||||||||||||||||
| Total building rent for 55,300 sq. ft. | $ | 1,878,134.50/year | ||||||||||||||||
| TENANT: MARIETTA MEMORIAL HOSPITAL | ||
| Approved by: | ![]() |
|
| Title | CEO | |
| Date | 4-22-16 | |
| LANDLORD: Belpre IV, LLC | ||
| Approved by: | |
|
| Title | Member | |
| Date | 4-14-16 | |
6,000 completed -10,755 remaining for pain center clinic suite
ADDITIONAL CHANGE ORDERS NOT INCLUDED IN TOTAL COST:
1. EXTERIOR ELEVATOR
2. ADDITIONAL LAND FRONT CORNER ENTRY
3. ADDITIONAL LABOR AND MATERIALS TO MOVE SLEEP LAB TO FIRST FLOOR
4. ADDITIONAL COST TO BUILD OUT PAIN CENTER CLINIC SUITE OVER AND ABOVE THE $100 SQ. FT. COST INCLUDED IN THE DEVELOPMENT BUDGET
| $ | 22,951,508 | |||||
| X 10 | % | |||||
| Rent for work completed to date | $ | 2,295,151 | Per Year | |||
| Effective 4-15-15 | $ | 191,263 | Per Month |
EXHIBIT B
DEVELOPMENT BUDGET FOR WORK COMPLETED AS OF 12-8-15
BELPRE EMERGENCY CARE/ENDOSCOPY CENTER
| Area - Sq. Ft. | Description | Sq. Ft. Cost | Total | work Completed to Date 12-8-15 | ||||||||||||||
| 1. | 55,300 | Shell and Core | $ | 110.00 | $ | 6,083,000 | $ | 6,083,000 | ||||||||||
| 2. | 14,800 | Emergency Room | $ | 225.00 | $ | 3,330,000 | $ | 3,330,000 | ||||||||||
| 3. | 1,180 | Laboratory | $ | 215.00 | $ | 253,700 | $ | 253,700 | ||||||||||
| 4. | 8,350 | Endoscopy | $ | 215.00 | $ | 1,784,500 | $ | 1,784,500 | ||||||||||
| 5. | 2,100 | Time Share | $ | 100.00 | $ | 210,000 | $ | 210,000 | ||||||||||
| 6. | 2,900 | Building Support | $ | 125.00 | $ | 188,500 | $ | 188,600 | ||||||||||
| 7. | 8,353 | Public and Administration Areas | $ | 125.00 | $ | 1,044,125 | $ | 1,044,125 | ||||||||||
| 8. | New Radiographic Equipment Infrastructure | $ | 200,000 | $ | 200,000 | |||||||||||||
| 9. | New CT Scanner Infrastructure | $ | 200,000 | $ | 200,000 | |||||||||||||
| 10 | 862 | Information Technology | $ | 95.00 | $ | 124,000 | $ | 124,000 | ||||||||||
| 11 | 3,180 | Canopies | $ | 150.00 | $ | 477,000 | $ | 477,000 | ||||||||||
| 12 | 4 acres | Site Work (4.0 AC), 176,000 sq. ft. parking, access roads, paving, lighting, utilities, sidewalks | $ | 6.00 | $ | 1,056,000 | $ | 1,056,000 | ||||||||||
| 13 | Foundation Reinforcement | $ | 350,000 | 350,000 | ||||||||||||||
| 14 | Emergency back-up generator | $ | 300,000 | $ | 300,000 | |||||||||||||
| 15 | Professional design fees | $ | 368,000 | $ | 368,000 | |||||||||||||
| 16 | Stair tower and elevators | $ | 640,000 | $ | 640,000 | |||||||||||||
| 17 | 16,755 | Shell space 1st and 2nd floor - physician's offices | $ | 100.00 | $ | 1,675,500 | $ | 600,000 | ||||||||||
| 18 | Contingency allowance for Interior construction | $ | 1,000,000 | $ | 1,000,000 | |||||||||||||
| a . Boiler System for HVAC and underfloor heat (add into contingency allowance) | ||||||||||||||||||
| b. Class I-2 construction (add into contingency allowance) | ||||||||||||||||||
| TOTAL CONSTRUCTION BUDGET | $ | 19,284,325 | $ | 18,208,825 | ||||||||||||||
| Land Value (4 acres @ $200,000 per acre) | $ | 800,000 | $ | 800,000 | ||||||||||||||
| TOTAL PROJECTED BUDGET | $ | 20,084,325 | $ | 19,008,825 | ||||||||||||||
| Total Change Orders 1-9 approved as of 12-8-15 | $ | 4,382,340 | ||||||||||||||||
| TOTAL WORK COMPLETED TO DATE 12-8-15 INCLUDES CHANGE ORDERS 1-9 | $ | 23,371,165 | ||||||||||||||||
| Rent for Physician's office space 16,755 sq. ft. @ $21.50 | $ | 360,232.50/year | ||||||||||||||||
| Rent for remainder of building 38,545 sq. ft. @ $39.38 | $ | 1,517,902.10/year | ||||||||||||||||
| Total building rent for 55,300 sq. ft. | $ | 1,878,134.50/year | ||||||||||||||||
| TENANT: MARIETTA MEMORIAL HOSPITAL | ||
| Approved by: | |
|
| Title | CEO | |
| Date | 4-22-16 | |
| LANDLORD: Belpre IV, LLC | ||
| Approved by: | |
|
| Title | Member | |
| Date | 4-14-16 | |
6,000 completed -10.755 remaining for pain center clinic suite
ADDITIONAL CHANGE ORDERS NOT INCLUDED IN TOTAL COST:
1. ADDITIONAL LAND FRONT CORNER ENTRY
2. ADDITIONAL COST TO BUILD OUT PAIN CENTER CLINIC SUITE OVER AND ABOVE THE $100 SQ. FT. COST INCLUDED IN THE DEVELOPMEN BUDGET
| $ | 23,371,165 | |||||
| X 10 | % | |||||
| Rent for work completed to date | $ | 2,337,117 | Per Year | |||
| Effective 12-8-15 | $ | 194,760 | Per Month |
EXHIBIT B
DEVELOPMENT BUDGET FOR WORK COMPLETED AS OF 3-31-16
BELPRE EMERGENCY CARE/ENDOSCOPY CENTER
| Area - Sq. Ft. | Description | Sq. Ft. Cost | Total | work Completed to Date 3-31-16 | ||||||||||||||
| 1 | 55,300 | Shell and Core | $ | 110.00 | $ | 6,083,000 | $ | 6,083,000 | ||||||||||
| 2. | 14,800 | Emergency Room | $ | 225.00 | $ | 3,330,000 | $ | 3,330,000 | ||||||||||
| 3. | 1,180 | Laboratory | $ | 215.00 | $ | 253,700 | $ | 253,700 | ||||||||||
| 4. | 8,350 | Endoscopy | $ | 215.00 | $ | 1,784,500 | $ | 1,784,500 | ||||||||||
| 5. | 2,100 | Time Share | $ | 100.00 | $ | 210,000 | $ | 210,000 | ||||||||||
| 6. | 2,900 | Building Support | $ | 125.00 | $ | 188,500 | $ | 188,500 | ||||||||||
| 7. | 8,353 | Public and Administration Areas | $ | 125.00 | $ | 1,044,125 | $ | 1,044,125 | ||||||||||
| 8. | New Radiographic Equipment Infrastructure | $ | 200,000 | $ | 200,000 | |||||||||||||
| 9. | New CT Scanner Infrastructure | $ | 200,000 | $ | 200,000 | |||||||||||||
| 10 | 862 | Information Technology | $ | 95.00 | $ | 124,000 | $ | 124,000 | ||||||||||
| 11 | 3,180 | Canopies | $ | 150.00 | $ | 477,000 | $ | 477,000 | ||||||||||
| 12 | 4 acres | Site Work (4.0 AC), 176,000 sq. ft. parking, access roads, paving, lighting, utilities, sidewalks | $ | 6.00 | $ | 1,056,000 | $ | 1,058,000 | ||||||||||
| 13 | Foundation Reinforcement | $ | 350,000 | $ | 350,000 | |||||||||||||
| 14 | Emergency back-up generator | $ | 300,000 | $ | 300,000 | |||||||||||||
| 15 | Professional design fees | $ | 368,000 | $ | 368,000 | |||||||||||||
| 16 | Stair tower and elevators | $ | 640,000 | $ | 640,000 | |||||||||||||
| 17 | 16,755 | Shell space 1st and 2nd floor - physician’s offices | $ | 100.00 | $ | 1,675,500 | $ | 1,675,500 | ||||||||||
| 18 | Contingency allowance for interior construction | $ | 1,000,000 | $ | 1,000,000 | |||||||||||||
| a. Boiler System for HVAC and underfloor heat (add into contingency allowance) | ||||||||||||||||||
| b. Class l-2 construction (add into contingency allowance) | $ | 19,284.325 | $ | 19,284,325 | ||||||||||||||
| TOTAL CONSTRUCTION BUDGET | ||||||||||||||||||
| Land Value (4 acres @ $200,000 per acre) | $ | 800,000 | $ | 800,000 | ||||||||||||||
| TOTAL PROJECTED BUDGET | $ | 20,084,325 | $ | 20,084,325 | ||||||||||||||
| Total Change Orders 1-10 approved as of 3-31-16 | $ | 4,662,113 | ||||||||||||||||
| TOTAL WORK COMPLETED TO DATE 3-31-16 INCLUDES CHANGE ORDERS 1-10 | $ | 24,746,438 | ||||||||||||||||
| Rent for Physician’s office space 16,755 sq. ft. @ $21.50 | $ | 360,232.50/year | ||||||||||||||||
| Rent for remainder of building 38,545 sq. ft. @ $39,38 | $ | 1,517,902.10/year | ||||||||||||||||
| Total building rent for 55,300 sq. ft. | $ | 1,878,134.50/year | ||||||||||||||||
| TENANT: MARIETTA MEMORIAL HOSPITAL | ||
| Approved by: | |
|
| Title | CEO | |
| Date | 4-22-16 | |
| LANDLORD: Belpre IV, LLC | ||
| Approved by: | |
|
| Title | Member | |
| Date | 4-14-16 | |
| $ | 24,746,438 | |||||
| X 10 | % | |||||
| Rent for work completed to date | $ | 2,474,644 | Per Year | |||
| Effective 3-31-16 | $ | 206,220 | Per Month |
EXHIBIT C
BUILD OUT ITEMS FURNISHED AND INSTALLED BY TENANT (IF REQUIRED)
| 1. | Appliances, equipment, and furniture |
| 2. | Telephone system and wiring |
| 3. | Computer system and wiring |
| 4. | Communication system and wiring |
| 5. | Security system and wiring |
| 6. | Exhaust systems and HVAC systems other than standard HVAC requirements to heat and cool tenant's space |
| 7. | Special plumbing and electrical requirements for diagnostic and medical equipment |
| 8. | All miscellaneous medical equipment, wall attachments, wall guards, and bumpers |
| 9. | Signage inside and outside |
| 10. | Landscaping |
EXHIBIT D

SECOND LEASE AMENDMENT
THIS SECOND LEASE AMENDMENT, Made and entered into effective the 1st day of November, 2017, by and between Belpre IV, LLC, a West Virginia limited liability company, (hereinafter “Landlord”) and Marietta Memorial Hospital, an Ohio non profit corporation (hereinafter “Tenant”).
WHEREAS, the parties entered into an initial Lease of the Demised Premises execute and acknowledged June 11, 2013 and an Amended Lease therefor dated April 14, 2016, and
WHEREAS, the parties wish to further amend the Amended Lease as herein provided;
NOW THEREFORE WITNESSETH: That for and in consideration of Five ($5.00) Dollars, cash in hand paid, and other good and valuable consideration, including the terms, conditions, mutual benefits and rental herein provided and provided in the Amended Lease, and the payment and performance thereof, the sufficiency of which is hereby acknowledged, the parties hereby agree that the Amended Lease is further amended effective November 1, 2017 as follows:
1. Section 1 of the Amended Lease is further amended to read as follows:
DEMISED PREMISES
Section 1: The Demised Premises consists of and are described as the gross building area of 55,300 square feet, pursuant to the project design of Trinity Health Group of the building (“Building”), located in the Health Bridge Medical Park, with the mailing address of 799 Farson Street, Belpre, Ohio 45714, together with the real estate upon which the Building parking lots, sidewalks and heliport are located, all as shown on the plats and floor plans included in the plans and specifications hereinafter described and those attached hereto as Exhibit A, being a part of the same real estate conveyed to Landlord by Minnite Family, LLC, a West Virginia limited liability company, by two (2) deeds as follows: (i) dated July 3, 2013 and recorded in the Washington County, Ohio Recorder’s Office in Official Record 548, at Page 2183, and (ii) dated November 26, 2014 and recorded in said Recorder’s Office in Official Record 574, at Page 937; and that certain tract of real estate containing 0.5794 acre as shown on Exhibit 1 hereto, together with improvements thereon, conveyed to Landlord by 601 Plaza L.L.C., a West Virginia limited liability company, by deed dated November 1, 2017 and to be recorded in said Recorder’s Office.
2. Section 2 of the Amended Lease is further amended to read as follows:
USE OF PREMISES
Section 2: The Demised Premises shall be used and occupied by Tennant during the term hereof, including any and all renewal terms, subject to the terms, conditions and limitations herein contained, as a free standing out patient health center, and for such uses reasonably related and incidental thereto, including, but not limited to, emergency room facilities (“Emergency Room Phase”), an endoscopy unit (“Endoscopy Phase”), shared services phase, observation suite, building support, pain center, and heliport, together with a maintenance building and equipment storage facility situate on the aforesaid tract of real estate containing 0.5794 acre as shown on Exhibit 1 hereto.
3. Commencing November 1, 2017, and for the remainder of the first five (5) years of the initial term of this Lease, Base Rent shall be an annual amount of $2,507,824.00 per year, payable in monthly installments of $208,985.33 each. In all other respects, Section 4 of the Amended Lease shall remain in full force and effect.
4. The Amended Lease is further amended by the addition of Section 31 thereto to read as follows:
FURTHER AMENDMENT OF DEMISED PREMISES
Section 31: Notwithstanding any other provision of this Lease, there may be deleted from the Demised Premises that certain tract of real estate containing 0.5128 acre as shown on Exhibit 1 hereto, comprising a part of the parking facilities of Tenant as of the effective date of this Second Lease Amendment, upon conveyance of such tract by Landlord, at Landlord’s sole discretion, free and clear of the terms of this Lease, and without requirement of any consent or further agreement of Tenant, to a party or parties related to Landlord, including, but not limited to, Minnite Family, LLC or Belpre V, LLC, and written notice thereof by Landlord to Tenant. Upon the making of such conveyance and giving of such notice, said tract of 0.5128 acre shall be excluded from the Demised Premises, but no further adjustment in the payment of Base Rent hereunder shall be made on account of the exclusion of such tract of 0.5128 acre from the Demised Premises.
| 2 |
5. In all other respects, except as expressly amended hereby, the Amended Lease and its terms and conditions shall remain in full force and effect.
IN WITNESS WHEREOF, the parties hereto have executed this Second Lease Amendment effective the 1st day of November, 2017.
| LANDLORD: | BELPRE IV, LLC | ||
| By: | Minnite Family, LLC, | ||
| Its Sole Member | |||
| By: | /s/ Pat Minnite, Jr. | |
| Pat Minnite, Jr. | ||
| Its: | Manager | |
| By: | /s/ Karmyn M. Conley | |
| Karmyn M. Conley | ||
| Its: | Manager | |
| By: | /s/ Pat Minnite, III | |
| Pat Minnite, III | ||
| Its: | Manager | |
| By: | /s/ Jason R. Minnite | |
| Jason R. Minnite | ||
| Its: | Manager |
| TENANT: | MARIETTA MEMORIAL HOSPITAL | ||
| By: | /s/ Scott Cantley | ||
| Scott Cantley | |||
| Its: | President and CEO | ||
| 3 |
STATE OF WEST VIRGINIA,
COUNTY OF WOOD, TO-WIT:
The foregoing instrument was acknowledged before me this 30th day of November, 2017 by Pat Minnite, Jr., the Manager of Minnite Family, LLC, a West Virginia limited liability company, on behalf of said limited liability company acting as sole member of Belpre IV, LLC, a West Virginia limited liability company, on behalf of said limited liability company.
| My commission expires: | 10-19-19 | |
![]() |
/s/ Melinda L. Lott | |
| Notary Public |
STATE OF WEST VIRGINIA,
COUNTY OF WOOD, TO-WIT:
The foregoing instrument was acknowledged before me this 30th day of November, 2017 by Karmyn M. Conley, the Manager of Minnite Family, LLC, a West Virginia limited liability company, on behalf of said limited liability company acting as sole member of Belpre IV, LLC, a West Virginia limited liability company, on behalf of said limited liability company.
| My commission expires: | 10-19-19 | |
![]() |
/s/ Melinda L. Lott | |
| Notary Public |
| 4 |
STATE OF WEST VIRGINIA,
COUNTY OF WOOD, TO-WIT:
The foregoing instrument was acknowledged before me this 30th day of November, 2017 by Pat Minnite, III, the Manager of Minnite Family, LLC, a West Virginia limited liability company, on behalf of said limited liability company acting as sole member of Belpre IV, LLC, a West Virginia limited liability company, on behalf of said limited liability company.
| My commission expires: | 10-19-19 | |
![]() |
/s/ Melinda L. Lott | |
| Notary Public |
STATE OF WEST VIRGINIA,
COUNTY OF WOOD, TO-WIT:
The foregoing instrument was acknowledged before me this 30th day of November, 2017 by Jason R. Minnite, the Manager of Minnite Family, LLC, a West Virginia limited liability company, on behalf of said limited liability company acting as sole member of Belpre IV, LLC, a West Virginia limited liability company, on behalf of said limited liability company.
| My commission expires: | 10-19-19 | |
![]() |
/s/ Melinda L. Lott | |
| Notary Public |
| 5 |
STATE OF OHIO
COUNTY OF WASHINGTON, TO WIT:
The foregoing instrument was acknowledged before me this 30th day of November, 2017, by Scott Cantley, President and CEO of Marietta Memorial Hospital, an Ohio non profit corporation, on behalf of said corporation.
| My commission expires: | June 9, 2021 | |
| /s/ Deborah K. Beaver | ||
| Notary Public | ||
![]() |
| 6 |
EXHIBIT I
